Back to Three Bay Oak Garages
Three Bay Oak Garages - WS01893
Also in: Wooden Garage
This is a building we have previously constructed which you may want to use as a starting point for your design. All our buildings are designed and manufactured to your individual specifications.
Details
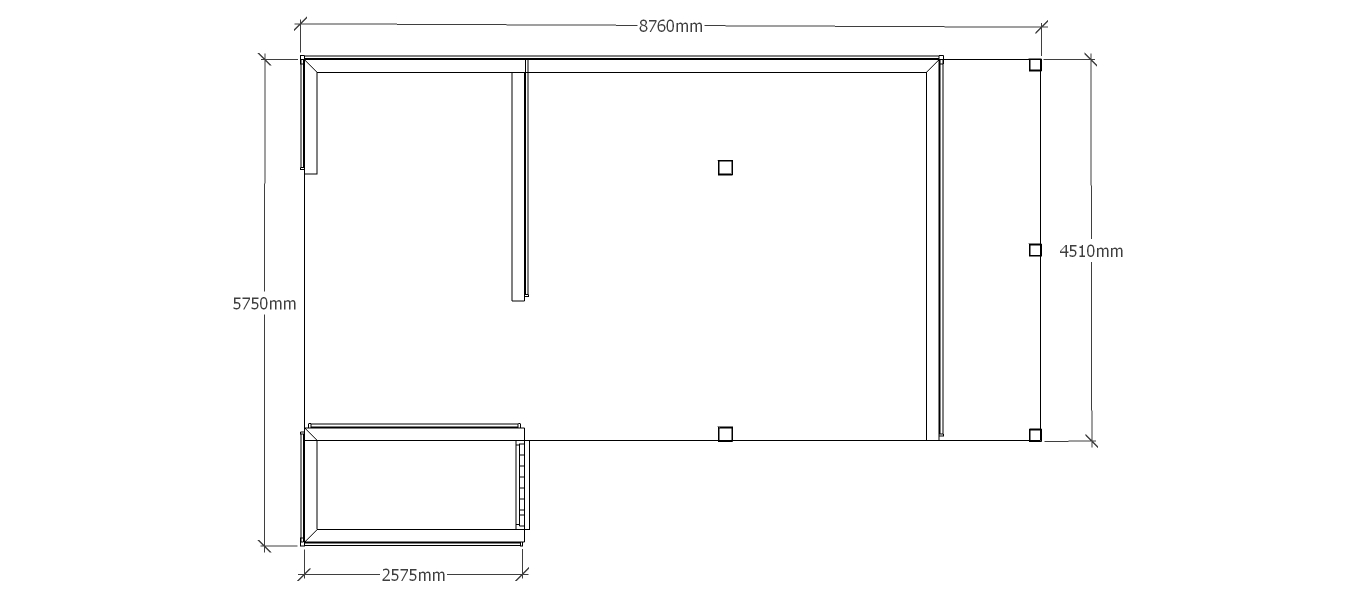
A 3 bay oak framed garage with an internal aisle at the front of the left hand bay with a solid single door in the right of the aisle. The other 2 bays are open at the front with an external aisle on the right and an internal aisle at the rear.On the left there is a barn hip roof and is open at the side.
Dimensions
| G/F Area (sq m) | 42.54 |
| Total Area (sq m) | 42.54 |
| Length (m) | 8.76 |
| Depth (m) | 5.7 |
| Ridge Height (m) | 3.8 |
| Roof Pitch (deg) | 40 |
| Number of Bays | 3 |
| Location | Belgium |





