Back to Home Leisure Buildings
Home Leisure Buildings - WS01885
This is a building we have previously constructed which you may want to use as a starting point for your design. All our buildings are designed and manufactured to your individual specifications.
Details
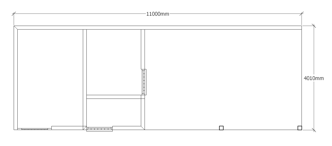
A 4 bay oak framed building with a solid single door at the front f the left bay as well as one on the second bay, there is also a 2 light window at the front of each of these bays while the other 2 bays are left open at the front and right side. There is an internal partition between the second and third bay on which there is another solid single door.
Dimensions
| G/F Area (sq m) | 44 |
| Total Area (sq m) | 44 |
| Length (m) | 11 |
| Depth (m) | 4 |
| Ridge Height (m) | 4.4 |
| Roof Pitch (deg) | 40 |
| Number of Bays | 4 |
| Location | Belgium |




