Back to Three Bay Oak Garages
Three Bay Oak Garages - WS01884
This is a building we have previously constructed which you may want to use as a starting point for your design. All our buildings are designed and manufactured to your individual specifications.
Details
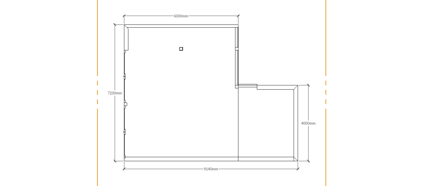
A 3 bay oak frame garage made up of 2 frames. The first frame is 2 bays in size. It has an internal aisle at the front with a 5 pane section of full height glazing on the left to allow plenty of natural light in the room, on the right side there are 2 pairs of iroko garage doors. The second frame is a single bay in size with a gable roof on the left and at the front is asolid single door.
Dimensions
| G/F Area (sq m) | 55.76 |
| Total Area (sq m) | 55.76 |
| Length (m) | 9.1 |
| Depth (m) | 7.2 |
| Ridge Height (m) | 4.9 |
| Roof Pitch (deg) | 40 |
| Number of Bays | 3 |
| Location | Belgium |




