Oak Framed Complexes - WS01883
This is a building we have previously constructed which you may want to use as a starting point for your design. All our buildings are designed and manufactured to your individual specifications.
Details
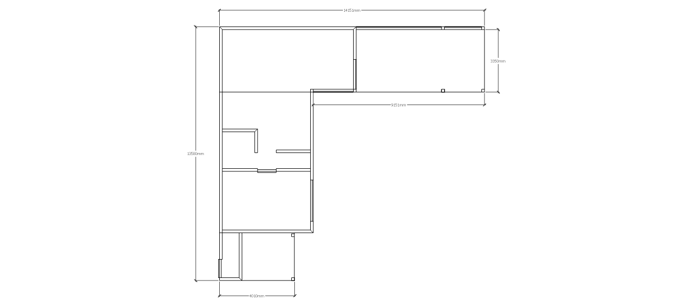
A 7 bay oak framed building made up of 3 frames. The first frame is a single bay in size with the left hand side partially boarded and open at the front and at the rear is a solid single door. The second frame is 3 bays in size and has a 2 light window on the left wall while at the front is a 2 pane section of full height glazing at the front as well as a square window and 4 panes of garden room style glazing to allow plenty of natural light into the building., there is also a 4 light window on the right. The final frame is also 3 bays in size. It has a 2 pane section of full height glazing at the front as well as another 2 pane section of full height glazing on an internal partition on the right, the rear of the frame has 8 panes of full height glazing to allow plenty of natural light into the building.
Dimensions
| G/F Area (sq m) | 97.2 |
| Total Area (sq m) | 97.2 |
| Length (m) | 14.15 |
| Depth (m) | 13.85 |
| Ridge Height (m) | 4.5 |
| Roof Pitch (deg) | 40 |
| Number of Bays | 7 |
| Location | Belgium |




