Back to Home Leisure Buildings
Home Leisure Buildings - WS01879
This is a building we have previously constructed which you may want to use as a starting point for your design. All our buildings are designed and manufactured to your individual specifications.
Details
A 3 bay oak framed leisure building with the left hand bay open at the front and left side, the centre bay has a pair of iroko garage doors and the front and the final bay has a mullion window. The right side of the building has a small square window, this frame has an external aisle at the rear and a chimney breast in the centre bay.
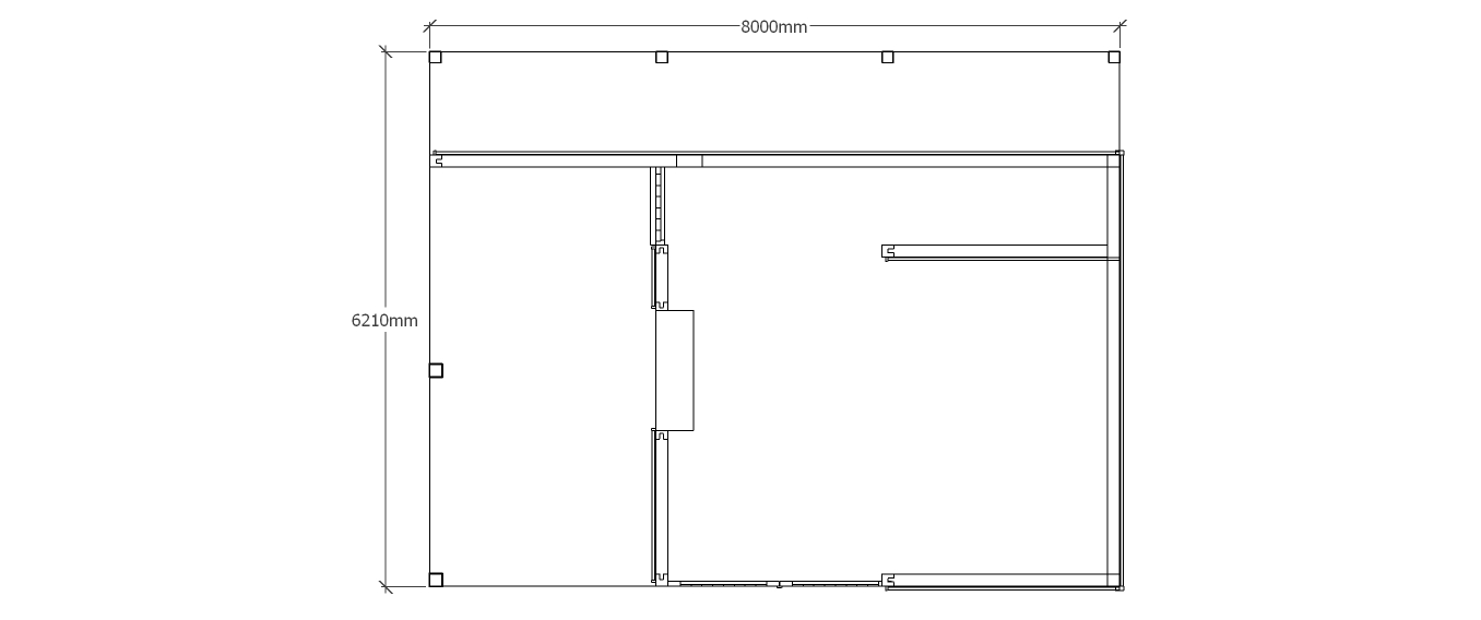
Dimensions
| G/F Area (sq m) | 49.6 |
| Total Area (sq m) | 49.6 |
| Length (m) | 8 |
| Depth (m) | 6.2 |
| Ridge Height (m) | 4.6 |
| Roof Pitch (deg) | 40 |
| Number of Bays | 3 |
| Location | Belgium |





