Oak Framed Houses - WS01877
This is a building we have previously constructed which you may want to use as a starting point for your design. All our buildings are designed and manufactured to your individual specifications.
Details
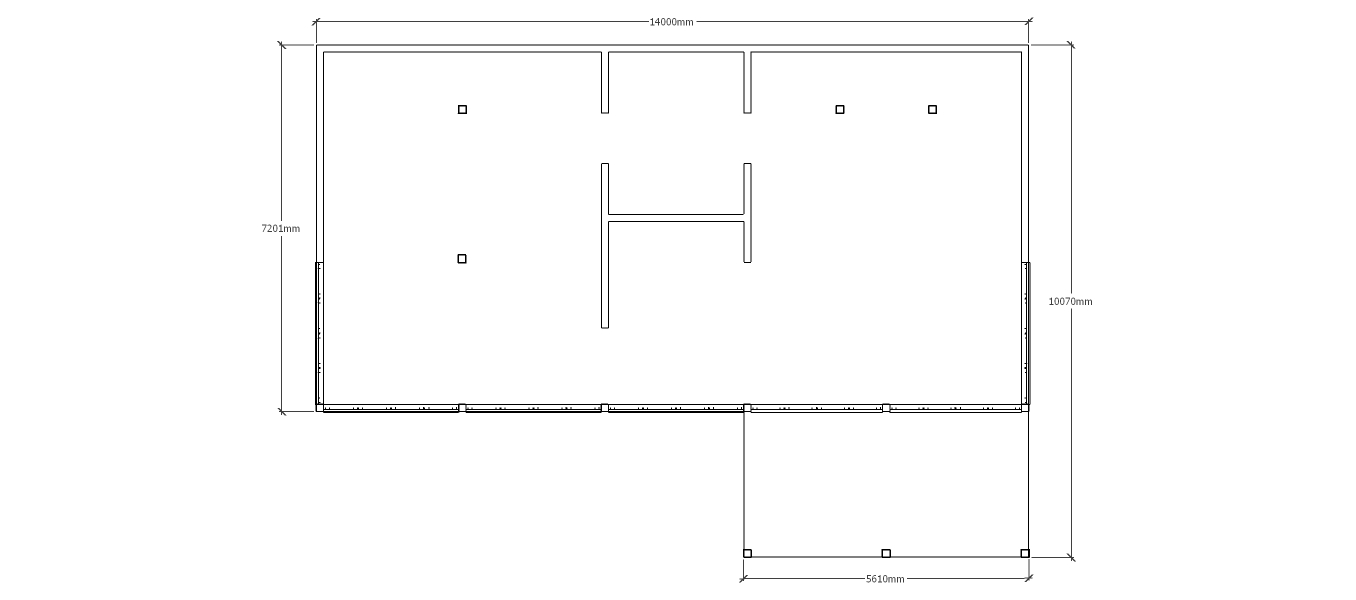
A 6 bay oak framed building made up of 2 frames. The first frame is 5 bays with upper floor. On the ground floor there is a 4 pane section of full height glazing on both the left and the right while at the front the entire wall is made up of full height glazing to allow masses of natural light into the building, the rear of the building has an internal aisle. The first floor has a julliet window on the left while at the front there is an eyebrow window made up of 4 panes. The second frame is a single bay in size and is open on all sides with a gable ended roof.
Dimensions
| G/F Area (sq m) | 116.48 |
| F/F Area (sq m) | 25.5 |
| Total Area (sq m) | 141.98 |
| Length (m) | 14 |
| Depth (m) | 10 |
| Ridge Height (m) | 5.4 |
| Roof Pitch (deg) | 45 |
| Number of Bays | 6 |
| Location | Belgium |




