Back to Two Bay Oak Garages
Two Bay Oak Garages - WS01875
This is a building we have previously constructed which you may want to use as a starting point for your design. All our buildings are designed and manufactured to your individual specifications.
Details
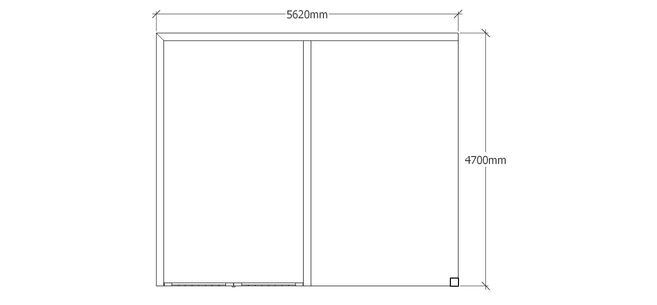
A 2 bay oak framed building with a pair of iroko garage doors at the front of 1 of the bays in which is a square window, the second bay is open at the front and right side with a square window in the gable end .
Dimensions
| G/F Area (sq m) | 26.41 |
| Total Area (sq m) | 26.41 |
| Length (m) | 5.62 |
| Depth (m) | 4.7 |
| Ridge Height (m) | 4.4 |
| Roof Pitch (deg) | 40 |
| Number of Bays | 2 |
| Location | Belgium |




