Back to Three Bay Oak Garages
Three Bay Oak Garages - WS01873
This is a building we have previously constructed which you may want to use as a starting point for your design. All our buildings are designed and manufactured to your individual specifications.
Details
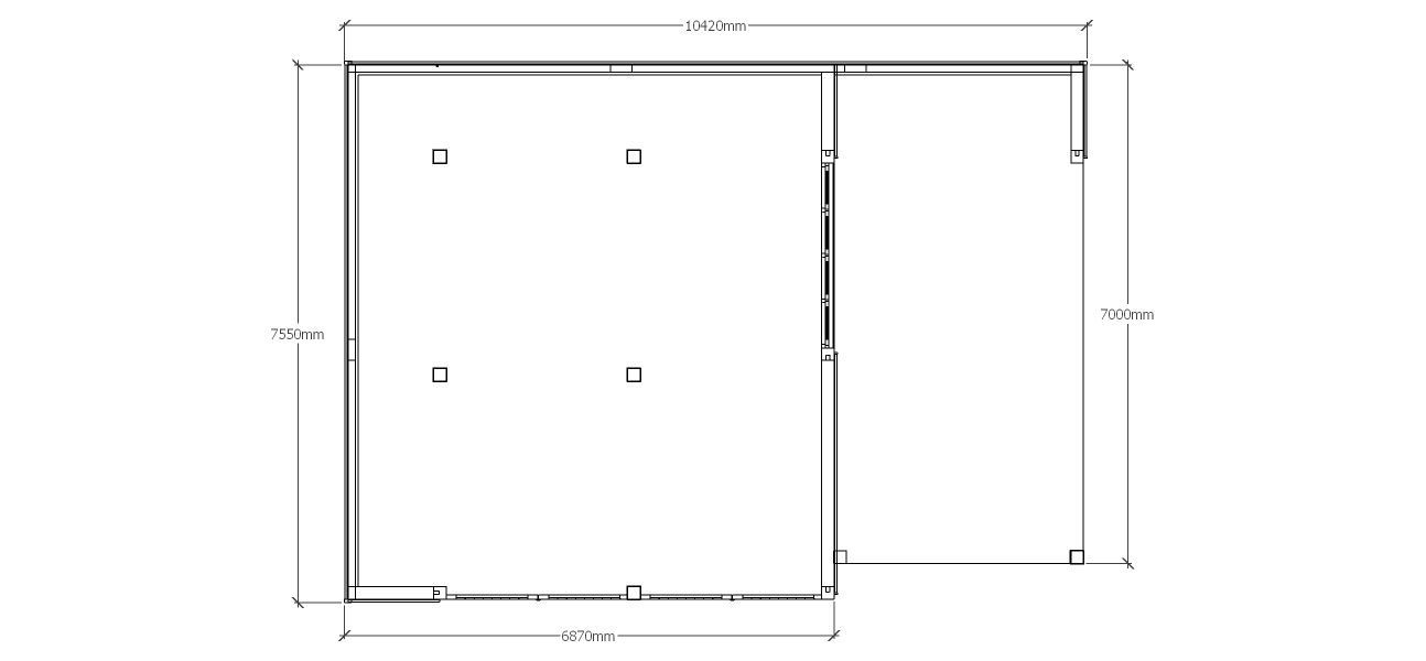
A 3 bay oak framed building made up of 2 frames. The first frame is 2 bays in size with 2 pairs of iroko garage doors at the front and an internal aisle on the left. The right wall that connects to the other frame has a 4 pane section of full height glazing while the rear has another internal aisle. The second frame is a single bay in size with the front and right side left open with an internal aisle at the rear.
Dimensions
| G/F Area (sq m) | 76.37 |
| Total Area (sq m) | 76.37 |
| Length (m) | 10.4 |
| Depth (m) | 7.5 |
| Ridge Height (m) | 5.1 |
| Roof Pitch (deg) | 40 |
| Number of Bays | 3 |
| Location | Belgium |



