Back to Three Bay Oak Garages
Three Bay Oak Garages - WS01872
This is a building we have previously constructed which you may want to use as a starting point for your design. All our buildings are designed and manufactured to your individual specifications.
Details
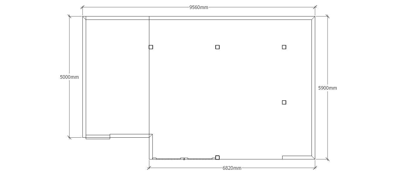
A 3 bay oak framed garage made up of 2 frames. The first frame is a single bay in size with an internal aisle at the rear while at the front is a solid single door and a mullion window. The second frame is 2 bays in size, it has 1 bay open at the front while the other is enclosed with a pair of iroko garage doors, the right wall has an internal aisle.
Dimensions
| G/F Area (sq m) | 53.94 |
| Total Area (sq m) | 53.94 |
| Length (m) | 9.56 |
| Depth (m) | 5.9 |
| Ridge Height (m) | 4.4 |
| Roof Pitch (deg) | 40 |
| Number of Bays | 3 |
| Location | Belgium |




