Back to Two Bay Oak Garages
Two Bay Oak Garages - WS01867
This is a building we have previously constructed which you may want to use as a starting point for your design. All our buildings are designed and manufactured to your individual specifications.
Details
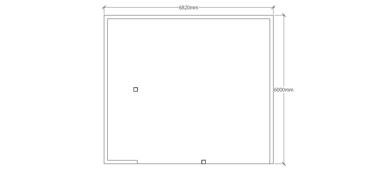
A 2 bay oak framed garage open at the front with an internal aisle on the left.
Dimensions
| G/F Area (sq m) | 40.92 |
| Total Area (sq m) | 40.92 |
| Length (m) | 6.82 |
| Depth (m) | 6 |
| Ridge Height (m) | 5.4 |
| Roof Pitch (deg) | 45 |
| Number of Bays | 2 |
| Location | Belgium |




