Back to Two Bay Oak Garages
Two Bay Oak Garages - WS01866
This is a building we have previously constructed which you may want to use as a starting point for your design. All our buildings are designed and manufactured to your individual specifications.
Details
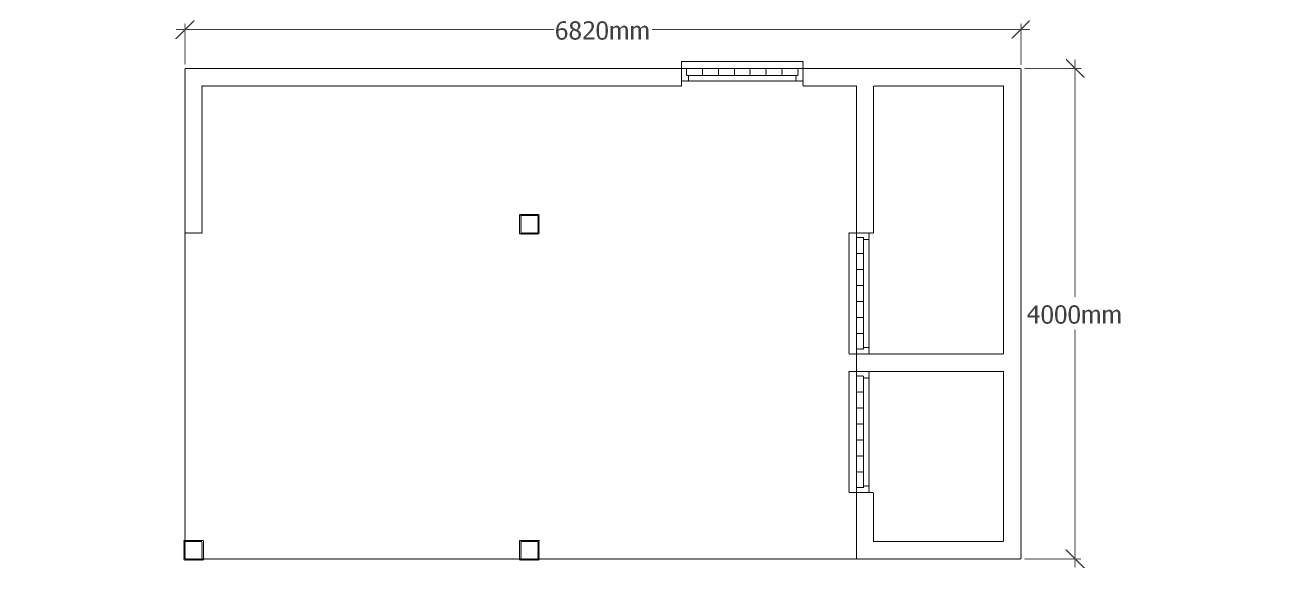
A 2 bay oak framed garage open at the front and left hand side with an internal aisle at the rear and right side. The aisle on the right is enclosed with an internal partition which contains 2 solid single iroko doors. At the rear of the building is a solid single door below a barn entrance.
Dimensions
| G/F Area (sq m) | 27.28 |
| Total Area (sq m) | 27.28 |
| Length (m) | 6.82 |
| Depth (m) | 4 |
| Ridge Height (m) | 3.6 |
| Roof Pitch (deg) | 40 |
| Number of Bays | 2 |
| Location | Belgium |




