Back to Four Bays and Upwards
Four Bays and Upwards - WS01865
This is a building we have previously constructed which you may want to use as a starting point for your design. All our buildings are designed and manufactured to your individual specifications.
Details
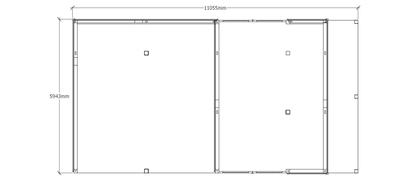
A 4 bay oak frame building with 2 bays left open at the front while one has a pair of iroko garage doors and the other is boarded with a sqaure window. This garage has an external aisle on the right and an internal aisle at the rear, there is also a barn entrance at the rear with a pair of iroko garage doors.
Dimensions
| G/F Area (sq m) | 66 |
| Total Area (sq m) | 66 |
| Length (m) | 11 |
| Depth (m) | 6 |
| Ridge Height (m) | 4.4 |
| Roof Pitch (deg) | 40 |
| Number of Bays | 4 |
| Location | Belgium |




