Back to Four Bays and Upwards
Four Bays and Upwards - WS01864
This is a building we have previously constructed which you may want to use as a starting point for your design. All our buildings are designed and manufactured to your individual specifications.
Details
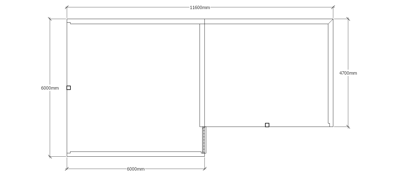
A 4 bay oak frame garage made up of 2 frames. The first frame is 2 bays on size open at the front with a solid single door at the rear. The second frame is also 2 bays in size with both bays open at the front and a gable roof on either end.
Dimensions
| G/F Area (sq m) | 62.32 |
| Total Area (sq m) | 62.32 |
| Length (m) | 11.6 |
| Depth (m) | 6 |
| Ridge Height (m) | 5 |
| Roof Pitch (deg) | 40 |
| Number of Bays | 4 |
| Location | Belgium |





