Oak Framed Complexes - WS01857
This is a building we have previously constructed which you may want to use as a starting point for your design. All our buildings are designed and manufactured to your individual specifications.
Details
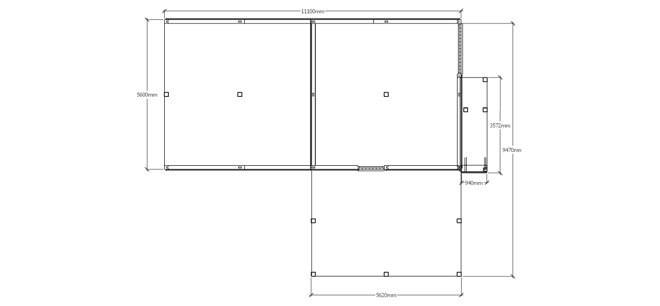
A 10 bay oak framed building made up of 2 frames. The first frame is 2 bays in size and is open on all sides with a barn hip roof on the left and connecting to the other frame on the right. The second frame is 8 bays in size, 4 bays on the ground floor and 4 bays on the first floor. The first floor is open on the left while at the front is a mullion window either side of a solid single door. On the right hand side there is a pair of iroko doors and an external oak staircase leading to the first floor. On the first floor there is a solid single door on the right while at the front there is a dormer housing a 2 light window to allow the natural light into the first floor of the frame.
Dimensions
| G/F Area (sq m) | 62.12 |
| Total Area (sq m) | 62.12 |
| Length (m) | 11.1 |
| Depth (m) | 9.5 |
| Ridge Height (m) | 5.2 |
| Roof Pitch (deg) | 45 |
| Number of Bays | 10 |
| Location | Belgium |





