Back to Four Bays and Upwards
Four Bays and Upwards - WS01855
This is a building we have previously constructed which you may want to use as a starting point for your design. All our buildings are designed and manufactured to your individual specifications.
Details
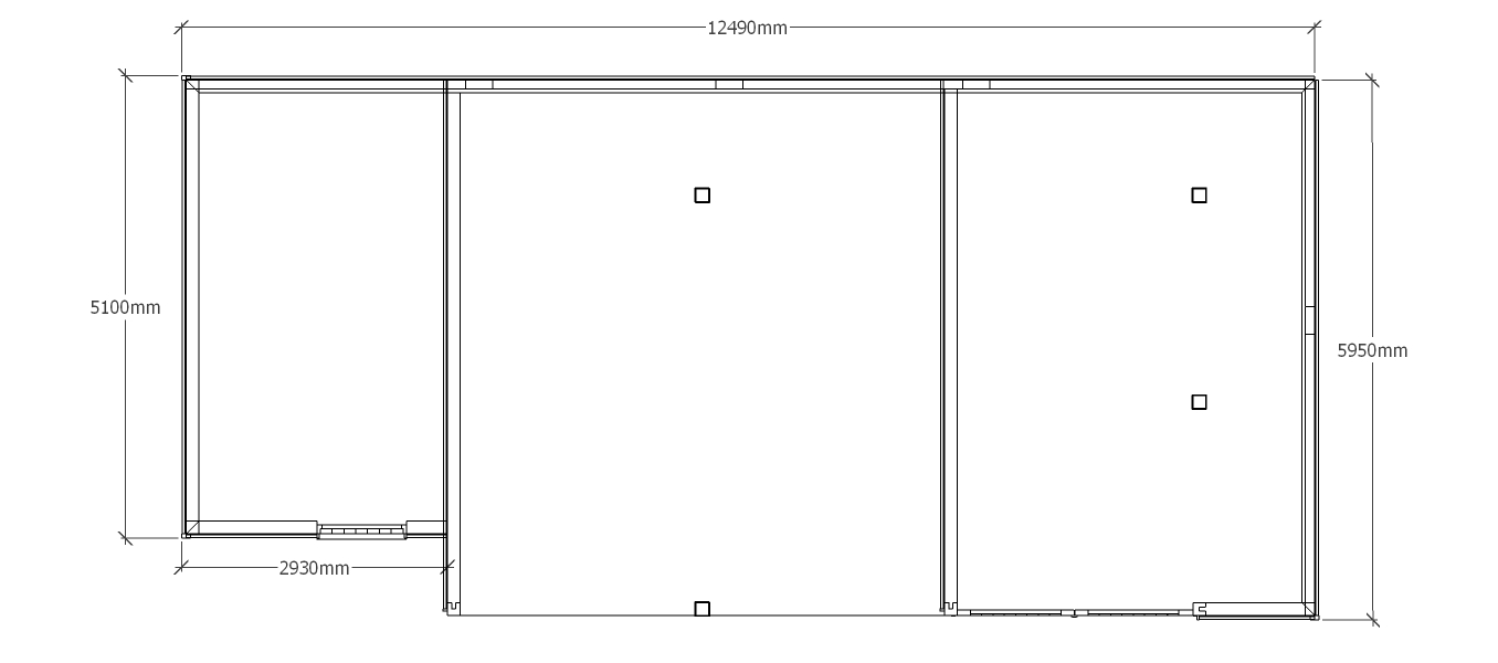
A 4 bay oak frame garage with a thatch roof made up of 2 frames. The first frame is a single bay in size with a solid sinlge door and a mullion window at the front, it also has a barn hip roof on the left and an internal aisle at the rear. The second frame is 3 bays in size with 2 bays left open at the front while the third is enclosed with a pair of iroko garage doors and has an aisle on the right and rear.
Dimensions
| G/F Area (sq m) | 72 |
| Total Area (sq m) | 72 |
| Length (m) | 12.5 |
| Depth (m) | 6 |
| Ridge Height (m) | 4.9 |
| Roof Pitch (deg) | 40 |
| Number of Bays | 4 |
| Location | Belgium |




