Back to Three Bay Oak Garages
Three Bay Oak Garages - WS01854
This is a building we have previously constructed which you may want to use as a starting point for your design. All our buildings are designed and manufactured to your individual specifications.
Details
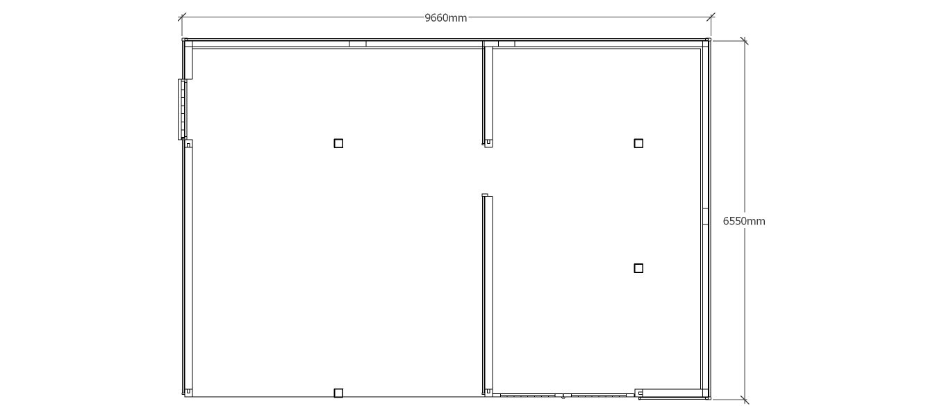
A 3 bay oak framed garage with a small door on the left wall while at the front 2 bays are left open and the other is enclosed within a pair of iroko garage doors. The building has an internal aisle on the right and at the rear.
Dimensions
| G/F Area (sq m) | 62.4 |
| Total Area (sq m) | 62.4 |
| Length (m) | 9.6 |
| Depth (m) | 6.5 |
| Ridge Height (m) | 4.6 |
| Roof Pitch (deg) | 40 |
| Number of Bays | 3 |
| Location | Belgium |




