Back to Home Leisure Buildings
Home Leisure Buildings - WS01853
This is a building we have previously constructed which you may want to use as a starting point for your design. All our buildings are designed and manufactured to your individual specifications.
Details
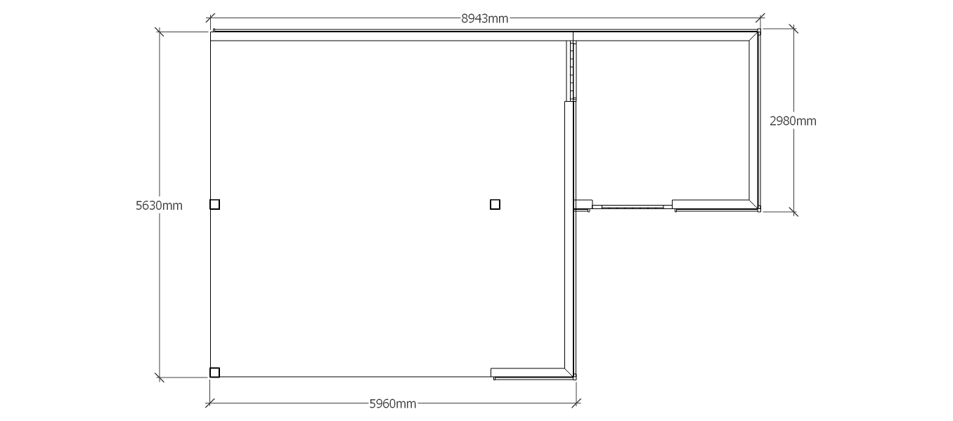
A 3 bay oak framed building made up of 2 frames. The first frame is a 2 bay carport area with weatherboard on the left and open at the front and the right, there is also an aisle at the rear. The second frame is a single bay with a solid single door and a mullion window at the front.
Dimensions
| G/F Area (sq m) | 42.55 |
| Total Area (sq m) | 42.55 |
| Length (m) | 8.9 |
| Depth (m) | 5.6 |
| Ridge Height (m) | 4.4 |
| Roof Pitch (deg) | 40 |
| Number of Bays | 3 |
| Location | Belgium |






