Four Bays and Upwards - WS01849
This is a building we have previously constructed which you may want to use as a starting point for your design. All our buildings are designed and manufactured to your individual specifications.
Details
An 8 bay oak frame building made up of 2 frames. The first frame is 2 bays in size with 1 bay on the ground floor and the second bay on the first floor. On the ground floor there are 2 panes of full height glazing at the front whil on the left is 4 panes of full height glazing and a 2 light window at the rear to allow plenty of natural light into the frame. On the first floor there is a 2 light window in the gable end. The second frame is 6 bays in size with 3 bays on the ground floor and a further 3 bays on the first floor. On the ground floor there is a section of full height glazing to allow plenty of natural light into the frame. On the right hand side are two 2light windows while at the rear is a solid single door and a quare window, the left of the building has another 2 light window. On the first floor there are 2 light windows at the rear left and the right hand side.
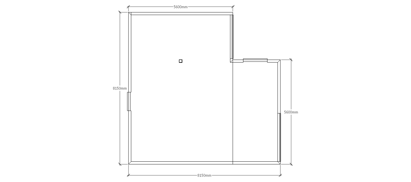
Dimensions
| G/F Area (sq m) | 59.89 |
| Total Area (sq m) | 59.89 |
| Length (m) | 8.15 |
| Depth (m) | 8.15 |
| Ridge Height (m) | 5.25 |
| Roof Pitch (deg) | 45 |
| Number of Bays | 8 |
| Location | Belgium |





