Back to Four Bays and Upwards
Four Bays and Upwards - WS01841
This is a building we have previously constructed which you may want to use as a starting point for your design. All our buildings are designed and manufactured to your individual specifications.
Details
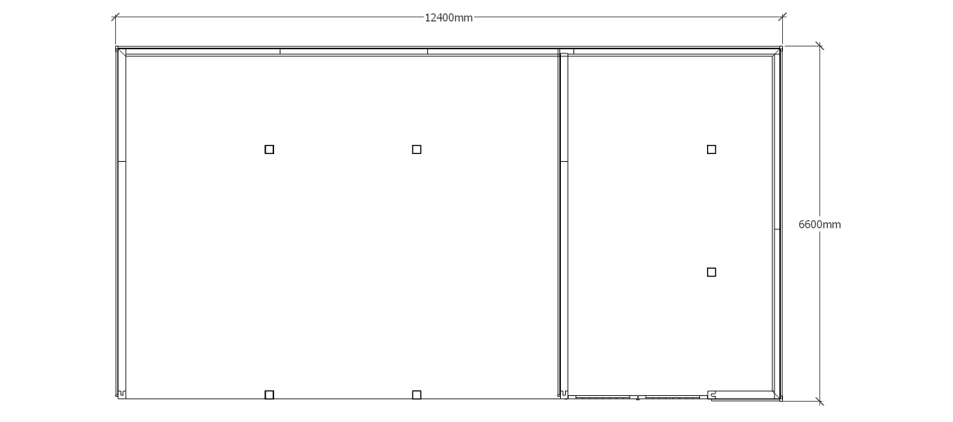
A 4 bay oak frame garage with 3 bays left open at the front while the fouth has a pair of iroko garage doors at the front with an internal aisle at the rear and right hand side..
Dimensions
| G/F Area (sq m) | 81.84 |
| Total Area (sq m) | 81.84 |
| Length (m) | 12.4 |
| Depth (m) | 6.6 |
| Ridge Height (m) | 4 |
| Roof Pitch (deg) | 34 |
| Number of Bays | 4 |
| Location | North Yorkshire |




