Back to Four Bays and Upwards
Four Bays and Upwards - WS01838
Also in: Oak Framed Complexes
Also in: Oak Framed Extensions
Also in: Oak lean to
Also in: Wooden Garage
This is a building we have previously constructed which you may want to use as a starting point for your design. All our buildings are designed and manufactured to your individual specifications.
Details
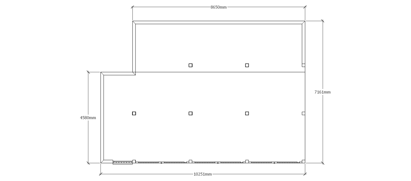
A 4 bay oak frame building made up of 2 frames. The first frame is a single bay in size and has an oak solid single door at the front with solid brick walls on the left and rear. The second frame is 3 bays in size with each bay enclosed at the front with a pair of oak garage doors. The rear of this frame has an internal aisle while the right wall is left open.
Dimensions
| G/F Area (sq m) | 67.56 |
| Total Area (sq m) | 67.56 |
| Length (m) | 10.2 |
| Depth (m) | 7.1 |
| Ridge Height (m) | 4.7 |
| Roof Pitch (deg) | 40 |
| Number of Bays | 4 |
| Location | Guernsey |




