Back to Two Bay Oak Garages
Two Bay Oak Garages - WS01837
This is a building we have previously constructed which you may want to use as a starting point for your design. All our buildings are designed and manufactured to your individual specifications.
Details
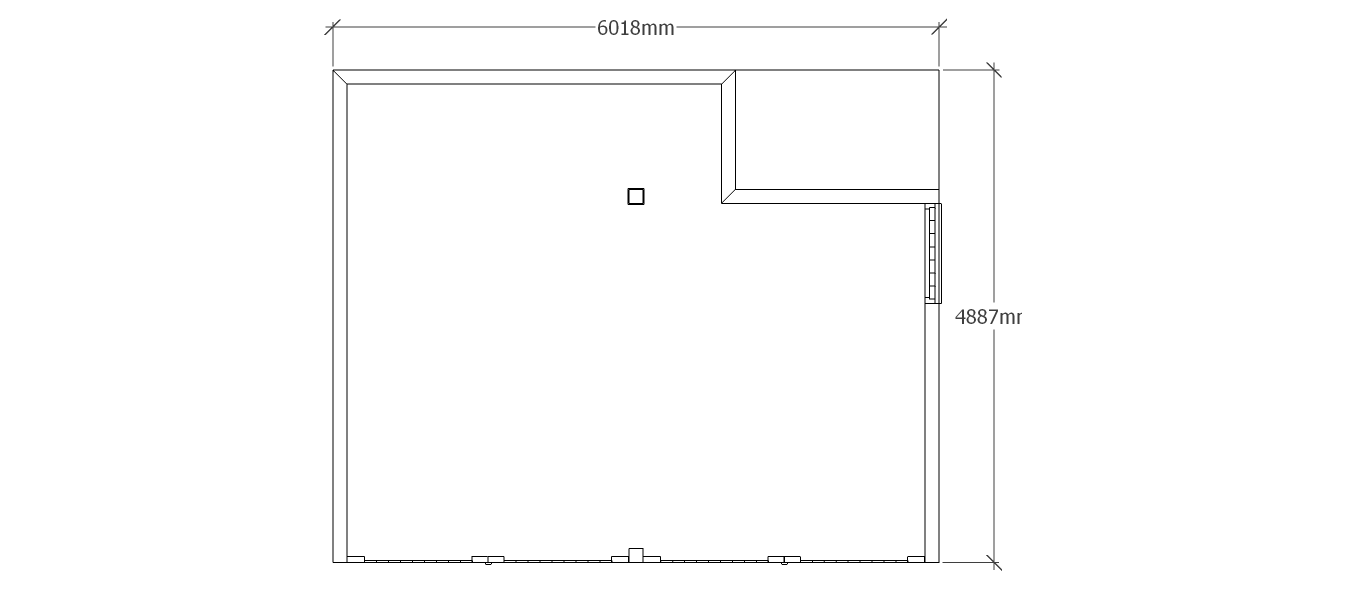
A 2 bay oak framed garage with a pair of iroko garage doors at the front of each bay while on the right wall there is a 2 light window and a solid single door, the left hand bay has an internal aisle at the rear
Dimensions
| G/F Area (sq m) | 29.41 |
| Total Area (sq m) | 29.41 |
| Length (m) | 6.018 |
| Depth (m) | 4.887 |
| Ridge Height (m) | 3.8 |
| Roof Pitch (deg) | 37 |
| Number of Bays | 2 |
| Location | Essex |




