Back to Home Leisure Buildings
Home Leisure Buildings - WS01836
This is a building we have previously constructed which you may want to use as a starting point for your design. All our buildings are designed and manufactured to your individual specifications.
Details
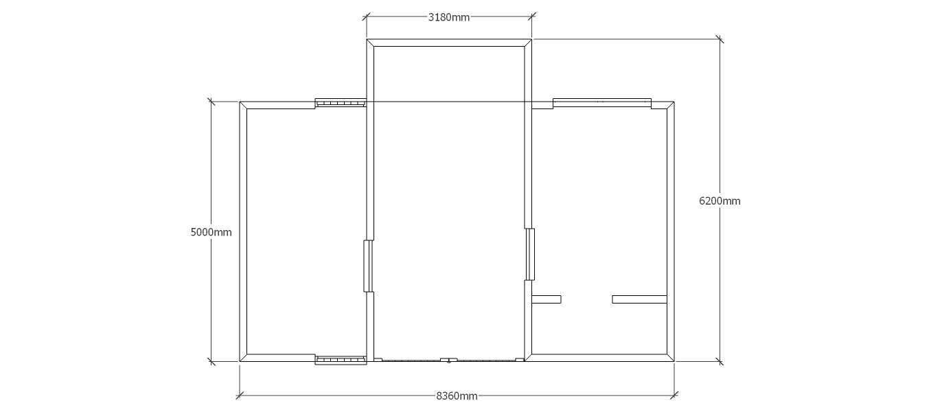
A 3 bay oak framed leisure buillding with a section of garden room windows along the left wall as well as 2 panes at the rear and 2 panes at the front allowing the natural light into the building. The front of the building also has a solid single door and a pair of iroko garage doors while the right hand side has 1 single pane window and a 2 light window. At the rear of the building is a pair of patio doors in the right hand bay while the centre bay has an internal aisle and on the left is a solid single door.
Dimensions
| G/F Area (sq m) | 44 |
| Total Area (sq m) | 44 |
| Length (m) | 8.36 |
| Depth (m) | 6 |
| Ridge Height (m) | 4.5 |
| Roof Pitch (deg) | 40 |
| Number of Bays | 3 |
| Location | Dorset |


