Back to Three Bay Oak Garages
Three Bay Oak Garages - WS01834
This is a building we have previously constructed which you may want to use as a starting point for your design. All our buildings are designed and manufactured to your individual specifications.
Details
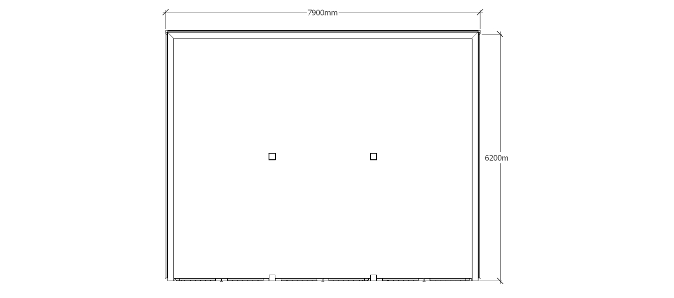
A 3 bay oak framed garage with 3 pairs of iroko garage doors at the front with a full hip roof on both ends.
Dimensions
| G/F Area (sq m) | 48.98 |
| Total Area (sq m) | 48.98 |
| Length (m) | 7.9 |
| Depth (m) | 6.2 |
| Ridge Height (m) | 4.6 |
| Roof Pitch (deg) | 35 |
| Number of Bays | 3 |
| Location | Kent |




