Back to Four Bays and Upwards
Four Bays and Upwards - WS01832
Also in: Oak Framed Complexes
Also in: Oak Framed Extensions
Also in: Oak lean to
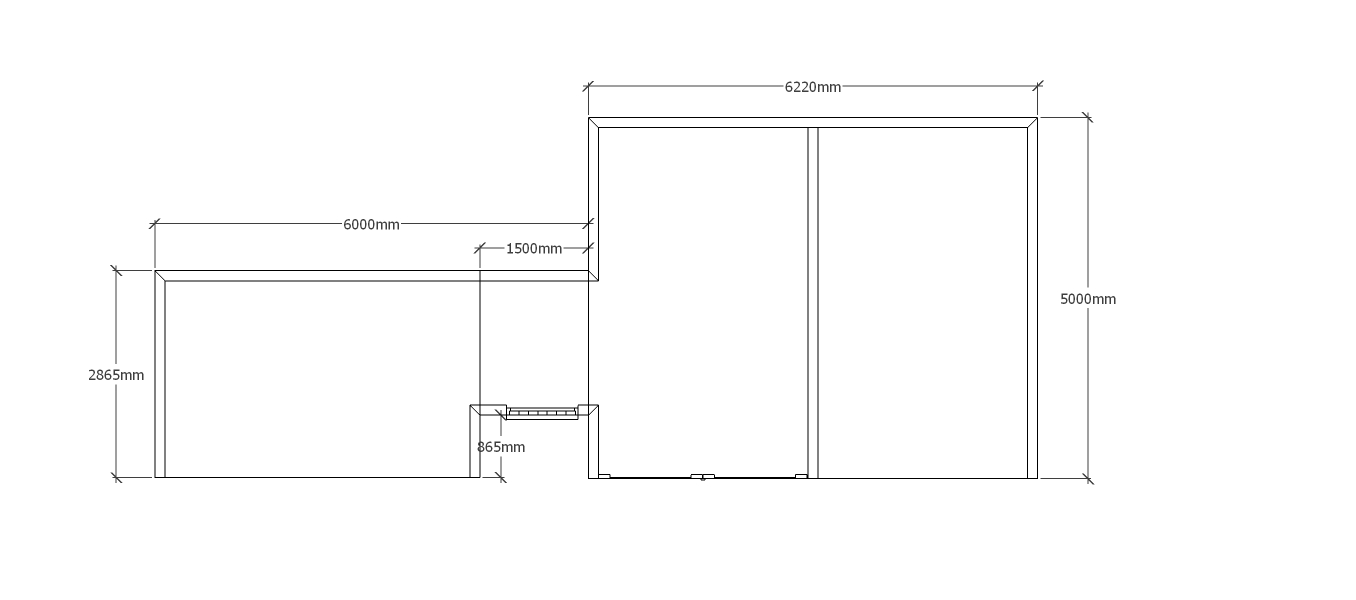
This is a building we have previously constructed which you may want to use as a starting point for your design. All our buildings are designed and manufactured to your individual specifications.
Details
A 4 bay oak framed extension made up of 3 frames. The first frame is a single bay that is attatched to an existing building on the left with a full hip roof on the right. The second frame is a sigle bay link between the other 2 frames with a solid single door at the front. The final frame is a 2 bay garage with a barn hip roof at both ends, the left hand bay is enclosed at the front with a pair of iroko garage doors while the right bay is left open at the front.
Dimensions
| G/F Area (sq m) | 46.97 |
| Total Area (sq m) | 46.97 |
| Length (m) | 12.2 |
| Depth (m) | 5 |
| Ridge Height (m) | 4.2 |
| Roof Pitch (deg) | 35 |
| Number of Bays | 4 |
| Location | Gloucestershire |





