Back to Oak Framed Extensions
Oak Framed Extensions - WS01828
Also in: Oak lean to
This is a building we have previously constructed which you may want to use as a starting point for your design. All our buildings are designed and manufactured to your individual specifications.
Details
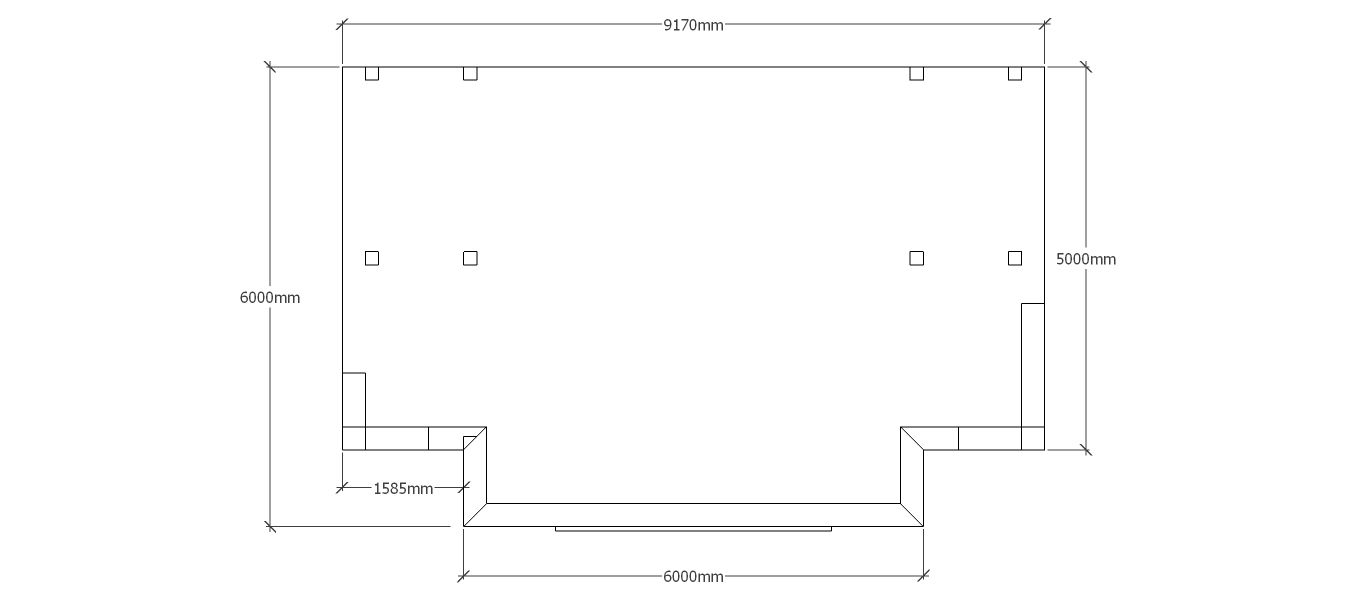
A 4 bay oak framed extension with a stunning feature glazed gable to the front giving plenty of natural light into the building.
Dimensions
| G/F Area (sq m) | 52 |
| Total Area (sq m) | 52 |
| Length (m) | 9.2 |
| Depth (m) | 6 |
| Ridge Height (m) | 4.1 |
| Roof Pitch (deg) | 30 |
| Number of Bays | 4 |
| Location | Northamptonshire |




