Four Bays And Upwards with Upper Floors - WS01822
This is a building we have previously constructed which you may want to use as a starting point for your design. All our buildings are designed and manufactured to your individual specifications.
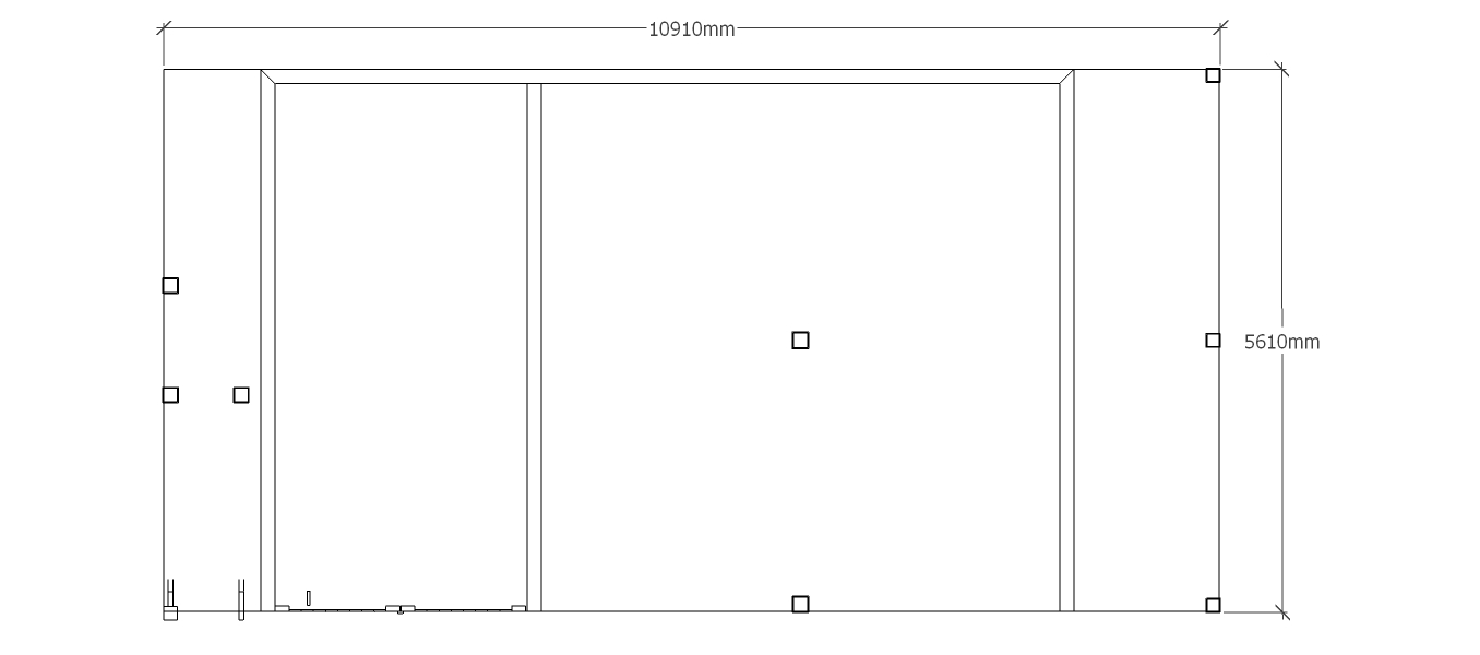
Details
A 6 bay oak framed garage made up of 2 frames. The first frame is 2 bays in size with 1 bay on the ground floor and another on the first floor. On the ground floor there is a pair of iroko garage doors at the front while on the left is an external oak staircase leading to the first floor. On the first floor is a solid single door on the left and at the rear is a Velux rooflight to allow plenty of natural light in. The second frame accounts for the other 4 bays, 2 on the ground floor and 2 on the first floor. On the ground floor the bays are open at the front with an external aisle on the right. On the first floor there is a velux rooflight that allows to light into the first floor of the frame.
Dimensions
| G/F Area (sq m) | 61.04 |
| Total Area (sq m) | 61.04 |
| Length (m) | 10.9 |
| Depth (m) | 5.6 |
| Ridge Height (m) | 5.5 |
| Roof Pitch (deg) | 45 |
| Number of Bays | 6 |
| Location | West Sussex |


