Back to Three Bay Oak Garages
Three Bay Oak Garages - WS01820
This is a building we have previously constructed which you may want to use as a starting point for your design. All our buildings are designed and manufactured to your individual specifications.
Details
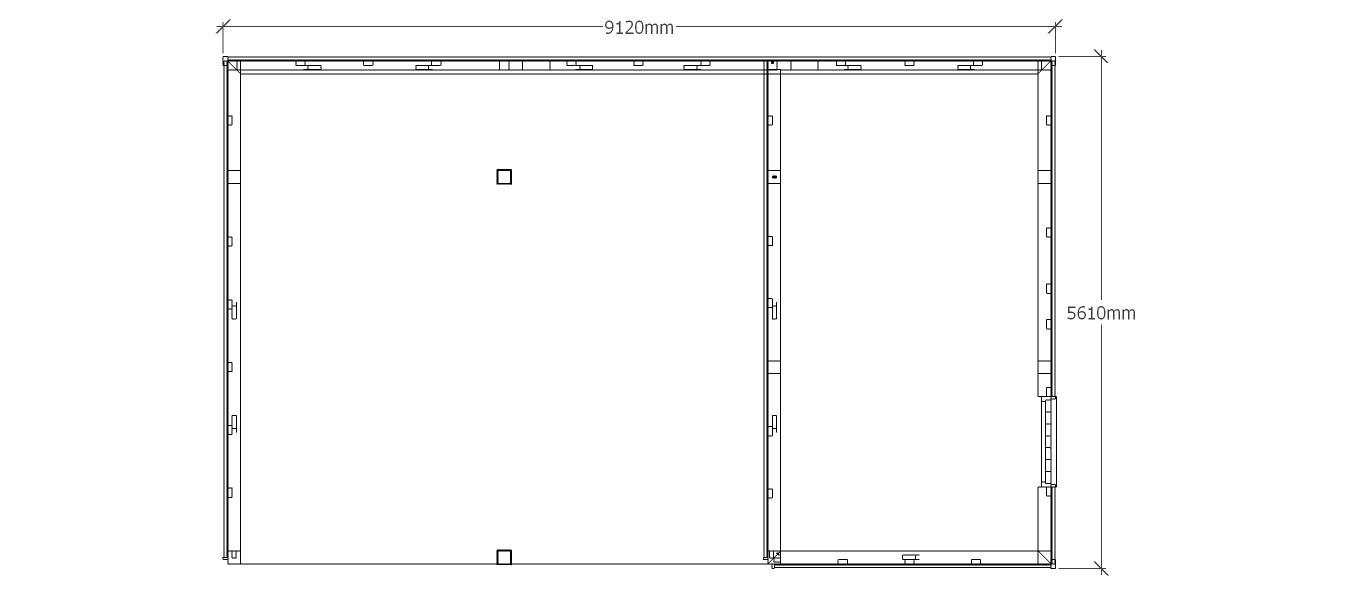
A 3 bay oak framed garage with 2 of the bays left open at the front with the third bay enclosed with a solid single door on the right and a 4 light window, this building has a gable roof on the left and right with an internal aisle at the rear.
Dimensions
| G/F Area (sq m) | 51.07 |
| Total Area (sq m) | 51.07 |
| Length (m) | 9.12 |
| Depth (m) | 5.6 |
| Ridge Height (m) | 3.9 |
| Roof Pitch (deg) | 35 |
| Number of Bays | 3 |
| Location | Berkshire |




