Back to Two Bay Oak Garages
Two Bay Oak Garages - WS01818
Also in: Wooden Garage
This is a building we have previously constructed which you may want to use as a starting point for your design. All our buildings are designed and manufactured to your individual specifications.
Details
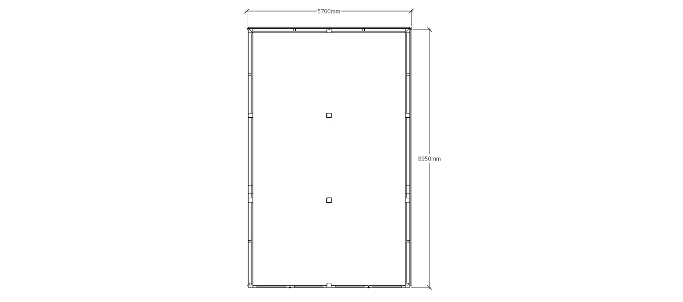
A 3 bay oak framed garage with oak weatherboarding all the way round, there are 2 pairs of oak garage doors on the left while there is a large 2 light window at the front to allow plenty of natural light into the building.
Dimensions
| G/F Area (sq m) | 51.02 |
| Total Area (sq m) | 51.02 |
| Length (m) | 8.95 |
| Depth (m) | 5.7 |
| Ridge Height (m) | 4.4 |
| Roof Pitch (deg) | 34 |
| Number of Bays | 2 |
| Location | Oxfordshire |




