Back to Two Bay Oak Garages
Two Bay Oak Garages - WS01816
This is a building we have previously constructed which you may want to use as a starting point for your design. All our buildings are designed and manufactured to your individual specifications.
Details
A 2 bay oak framed garage with a barn hip roof on the left and right, there is an internal aisle at the rear and both bays are open at the front.
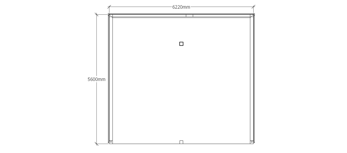
Dimensions
| G/F Area (sq m) | 34.83 |
| Total Area (sq m) | 34.83 |
| Length (m) | 6.22 |
| Depth (m) | 5.6 |
| Ridge Height (m) | 3.9 |
| Roof Pitch (deg) | 35 |
| Number of Bays | 2 |
| Location | Somerset |




