Three Bay Oak Garages with Upper Floors - WS01809
This is a building we have previously constructed which you may want to use as a starting point for your design. All our buildings are designed and manufactured to your individual specifications.
Details
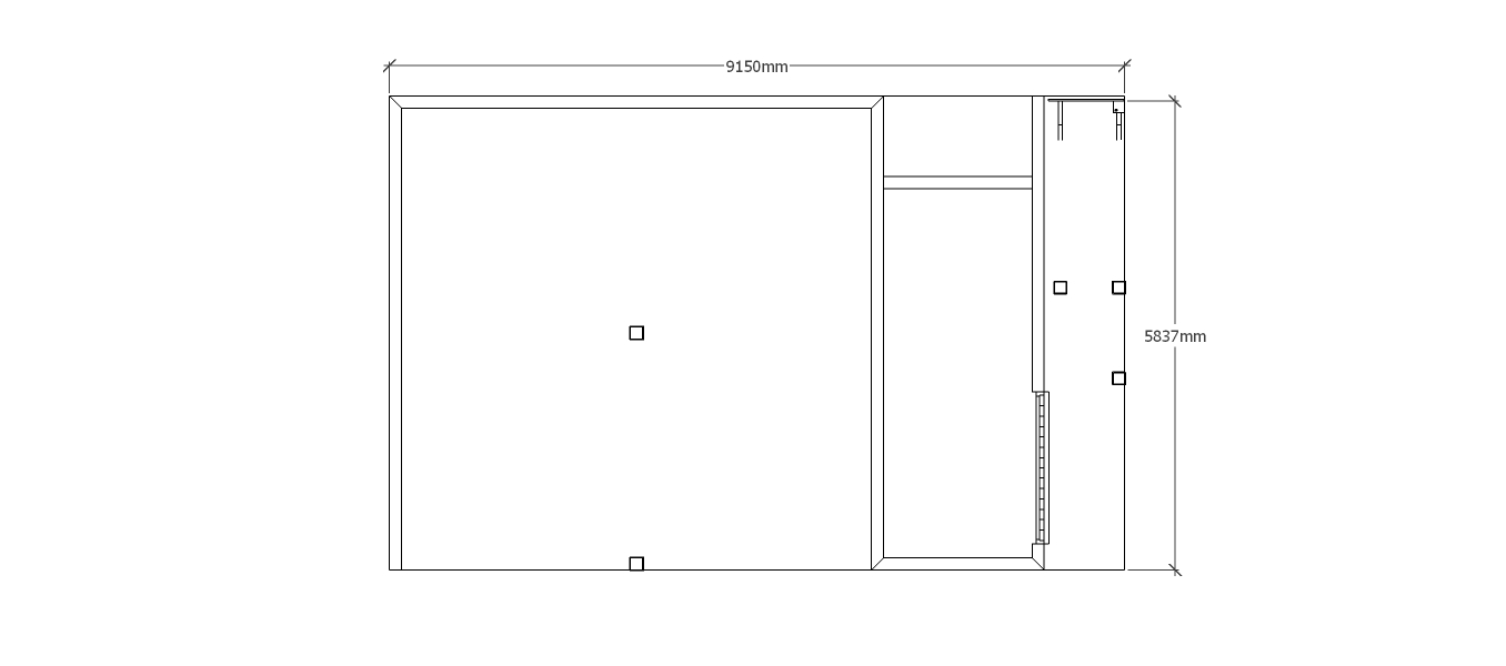
A 3 bay oak frame building with upper floor. The lower floor has 2 bays left open at the front while the right hand bay has a pair of garage doors on the right and is boarded at the front and open at the rear. The building has oak weatherboard all around and on the right hand wall is an oak external staircase leading to the first floor. On the first floor there is an oak solid single door in the right gable while in the left hand end is a 2 light window. The rear of the building has 2 smaller rooflights and one large one in the centre to allow plenty of natural light into the frame.
Dimensions
| G/F Area (sq m) | 53.07 |
| F/F Area (sq m) | 30.97 |
| Total Area (sq m) | 84.04 |
| Length (m) | 9.15 |
| Depth (m) | 5.8 |
| Ridge Height (m) | 5.4 |
| Roof Pitch (deg) | 45 |
| Number of Bays | 3 |
| Location | Hertfordshire |




