Back to Three Bay Oak Garages
Three Bay Oak Garages - WS01808
This is a building we have previously constructed which you may want to use as a starting point for your design. All our buildings are designed and manufactured to your individual specifications.
Details
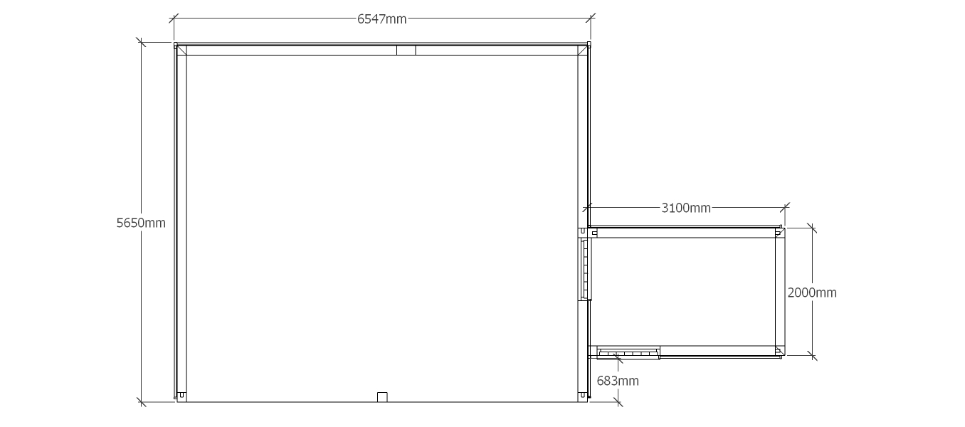
A 3 bay oak framed garage made up of 2 frames. The first frame is 2 bays in size and is the garage area with both bays left open at the front with a barn hip style roof either end and on the right wall is a softwood solid single door connecting to the other frame. The second frame is a link building between the garage and an existing building with a softwood solid single door at the front and a 2 light window .
Dimensions
| G/F Area (sq m) | 42.6 |
| Total Area (sq m) | 42.6 |
| Length (m) | 9.6 |
| Depth (m) | 5.6 |
| Ridge Height (m) | 5 |
| Roof Pitch (deg) | 40 |
| Number of Bays | 3 |
| Location | Surrey |




