Back to Three Bay Oak Garages
Three Bay Oak Garages - WS01802
This is a building we have previously constructed which you may want to use as a starting point for your design. All our buildings are designed and manufactured to your individual specifications.
Details
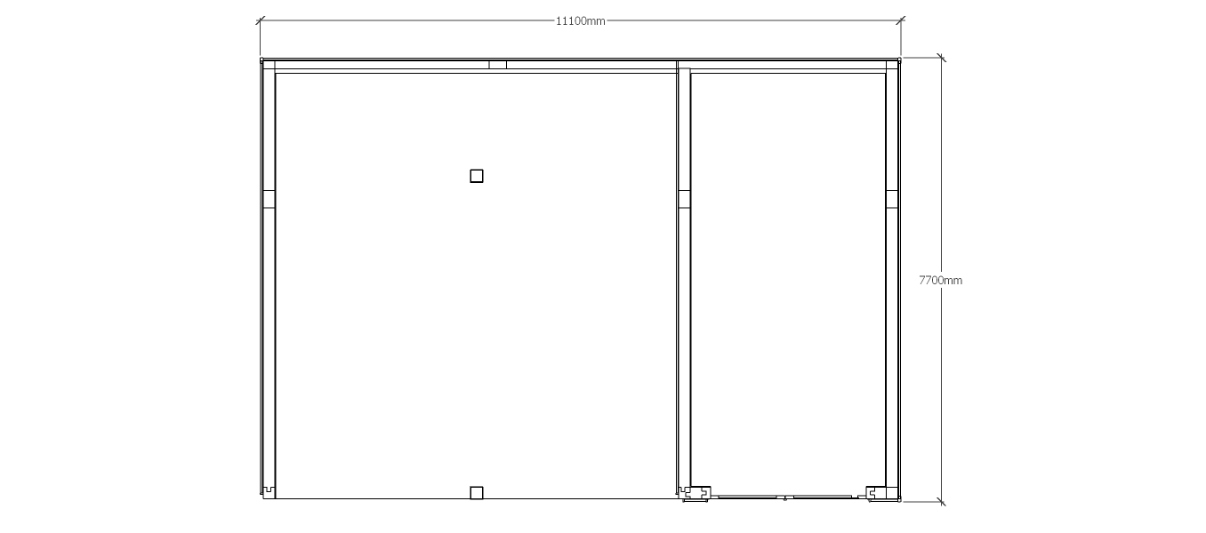
A 3 bay oak framed garage with a full hipped slate roof that has 2 bays open at the front while the third is enclosed with a pair of iroko garage doors, the left and right wall are weatherboarded while the rear has an internal aisle.
Dimensions
| G/F Area (sq m) | 85.47 |
| Total Area (sq m) | 85.47 |
| Length (m) | 11.1 |
| Depth (m) | 7.7 |
| Ridge Height (m) | 4.4 |
| Roof Pitch (deg) | 30 |
| Number of Bays | 3 |
| Location | Hampshire |




