Back to Home Leisure Buildings
Home Leisure Buildings - WS01796
This is a building we have previously constructed which you may want to use as a starting point for your design. All our buildings are designed and manufactured to your individual specifications.
Details
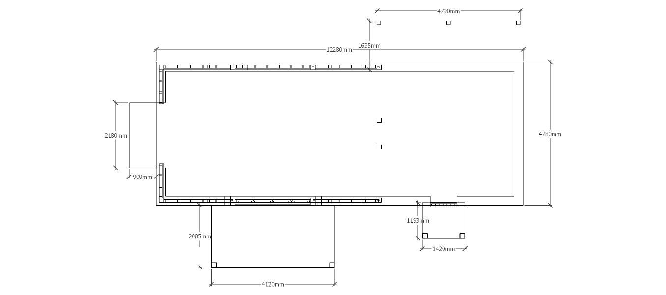
A 6 bay oak framed leisure building with a brick built chimney on the left with a small window either side, at the front there is a porch area with a glazed gable while the main frame has a section of full height glazing as well as a window either side to allow the natural light into the building. At the rear of this frame are 2 velux windows and a large window, the right hand bay also has an external aisle
Dimensions
| G/F Area (sq m) | 77.1 |
| Total Area (sq m) | 77.1 |
| Length (m) | 13.1 |
| Depth (m) | 8.3 |
| Roof Pitch (deg) | 32 |
| Number of Bays | 6 |
| Location | Berkshire |





