Oak Framed Complexes - WS01790
This is a building we have previously constructed which you may want to use as a starting point for your design. All our buildings are designed and manufactured to your individual specifications.
Details
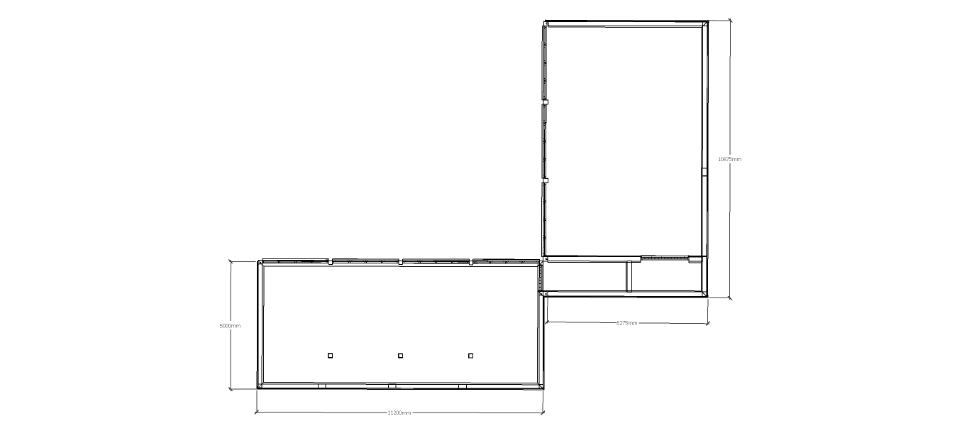
An 8 bay complex made up of 2 frames, the frist frame is 4 bays with upper floor. On the ground floor the front of the building is made up entirely of full height glazing to allow plenty of natural light into the building while the left and rear are completely weatherboarded. The first floor has a full hip roof on the left and a barn hip roof on the right while at the front are two dormer windows each housing a 3 light window to allow the light into the upper floor of the building. The second frame is 4 bays in size again with full height glazing along the entire front wall as well as an internal aisle at the rear.
Dimensions
| G/F Area (sq m) | 124.71 |
| F/F Area (sq m) | 57 |
| Total Area (sq m) | 181.71 |
| Length (m) | 17.55 |
| Depth (m) | 14.6 |
| Ridge Height (m) | 5.7 |
| Roof Pitch (deg) | 40 |
| Number of Bays | 8 |
| Location | West Sussex |





