Back to Two Bay Oak Garages with Upper Floors
Two Bay Oak Garages with Upper Floors - WS01788
This is a building we have previously constructed which you may want to use as a starting point for your design. All our buildings are designed and manufactured to your individual specifications.
Details
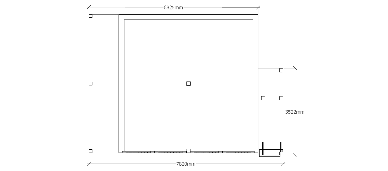
A 2 bay oak frame garage with upper floor. On the ground floor there is an external aisle on the left while at the front are 2 pairs of iroko garage doors and on the right hand side is an external staircase allowing access to the first floor. On the first floor is a half glazed door on the right and a mullion window on the left, at the front of the building are 2 dormer windows each housing a 2 light window to allow the light into the first floor.
Dimensions
| G/F Area (sq m) | 38.08 |
| F/F Area (sq m) | 24.48 |
| Total Area (sq m) | 62.56 |
| Length (m) | 6.8 |
| Depth (m) | 5.6 |
| Ridge Height (m) | 5.2 |
| Roof Pitch (deg) | 45 |
| Number of Bays | 2 |
| Location | Surrey |


