Back to Home Leisure Buildings
Home Leisure Buildings - WS01772
This is a building we have previously constructed which you may want to use as a starting point for your design. All our buildings are designed and manufactured to your individual specifications.
Details
A 3 bay oak framed leisure building with full height glazing along the entire fron wall to allow plenty of natural light into the building with a clockface above. The left of the building has a 3 light window as well as a solid single door while the right side has only a 3 light window. The rear of the building has an external aisle.
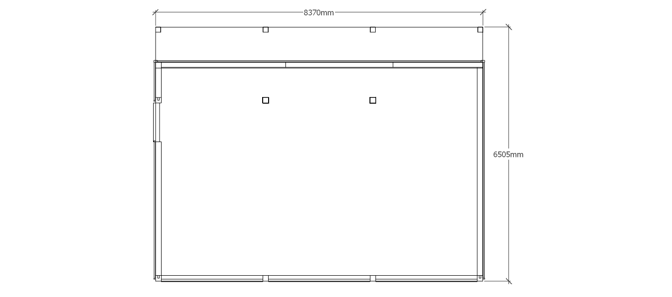
Dimensions
| G/F Area (sq m) | 54.6 |
| Total Area (sq m) | 54.6 |
| Length (m) | 8.4 |
| Depth (m) | 6.5 |
| Ridge Height (m) | 4.4 |
| Roof Pitch (deg) | 40 |
| Number of Bays | 3 |
| Location | Gloucester |




