Oak Framed Complexes - WS01755
This is a building we have previously constructed which you may want to use as a starting point for your design. All our buildings are designed and manufactured to your individual specifications.
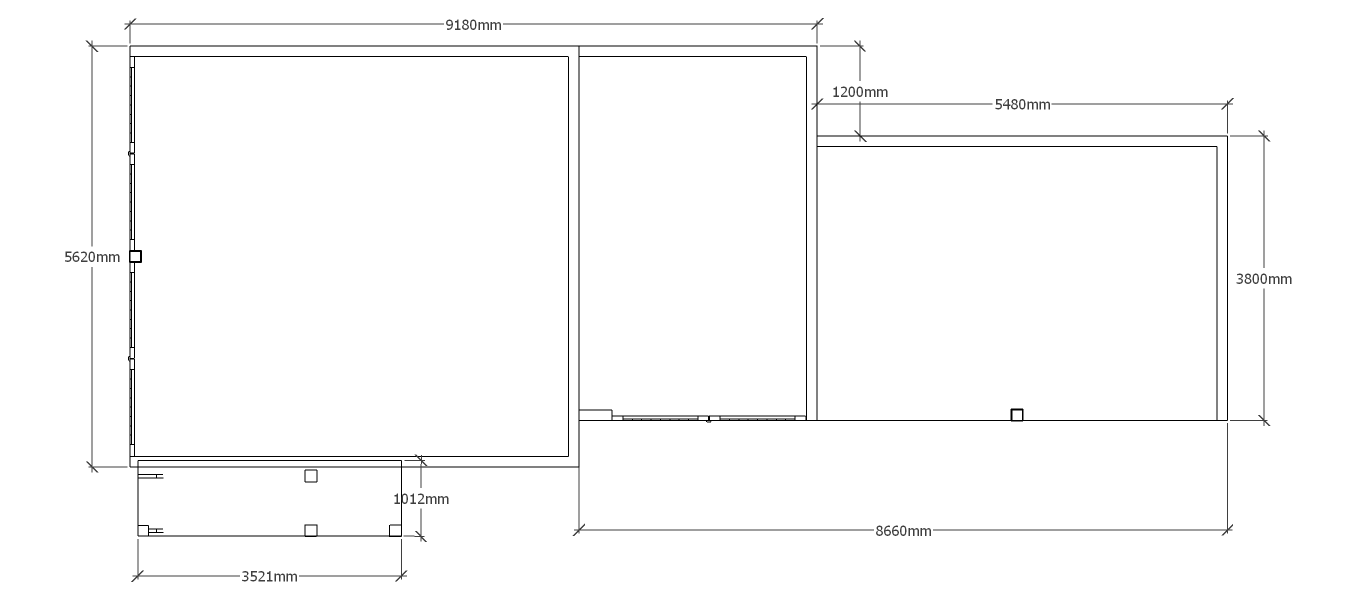
Details
A 5 bay oak framed Complex made up of 2 frames, the first frame accounts for 2 of the bays with upper floor. On the ground floor the bays are enclosed at the front with a pair of iroko garage doors each, while the right hand wall is entirely brick, also on the right hand side is an external staircase leading to the first floor. On the first floor there is a solid single door on the right to allow access, also on the first floor there is a 2 light dormer window at the front of each bay to allow the natural light into the room. The second frame attaches to the rear of the first frame and is a 3 bay frame with extra high eaves for access for taller vehicles with 1 bay enclosed with a pair of hardwood barn doors and 2 further open bays with a full hip roof on the right.
Dimensions
| G/F Area (sq m) | 72.4 |
| F/F Area (sq m) | 16.95 |
| Total Area (sq m) | 89.35 |
| Length (m) | 14.6 |
| Depth (m) | 5.62 |
| Ridge Height (m) | 5.4 |
| Roof Pitch (deg) | 45 |
| Number of Bays | 5 |
| Location | Kent |




