Back to Three Bay Oak Garages
Three Bay Oak Garages - WS01754
This is a building we have previously constructed which you may want to use as a starting point for your design. All our buildings are designed and manufactured to your individual specifications.
Details
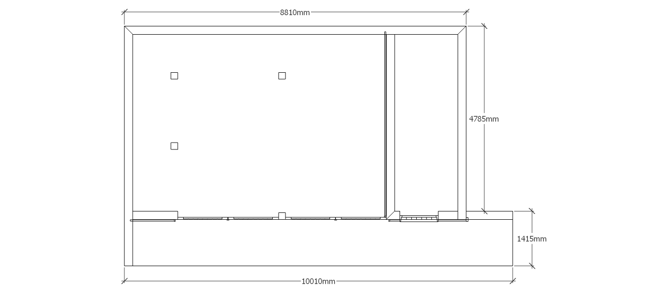
A 3 bay oak framed garage with 2 bays enclosed at the front with a pair of iroko garage doors while the third bay is weatherboarded with a solid single door, this building has a gablet roof on the left and gable end on the right while there is an internal aisle on both the rear and the left side.
Dimensions
| G/F Area (sq m) | 42.24 |
| Total Area (sq m) | 42.24 |
| Length (m) | 8.8 |
| Depth (m) | 4.8 |
| Ridge Height (m) | 3.98 |
| Roof Pitch (deg) | 50 |
| Number of Bays | 3 |
| Location | Buckinghamshire |




