Four Bays and Upwards - WS01752
Also in: Home Leisure Buildings
Also in: Oak Framed Extensions
Also in: Oak lean to
This is a building we have previously constructed which you may want to use as a starting point for your design. All our buildings are designed and manufactured to your individual specifications.
Details
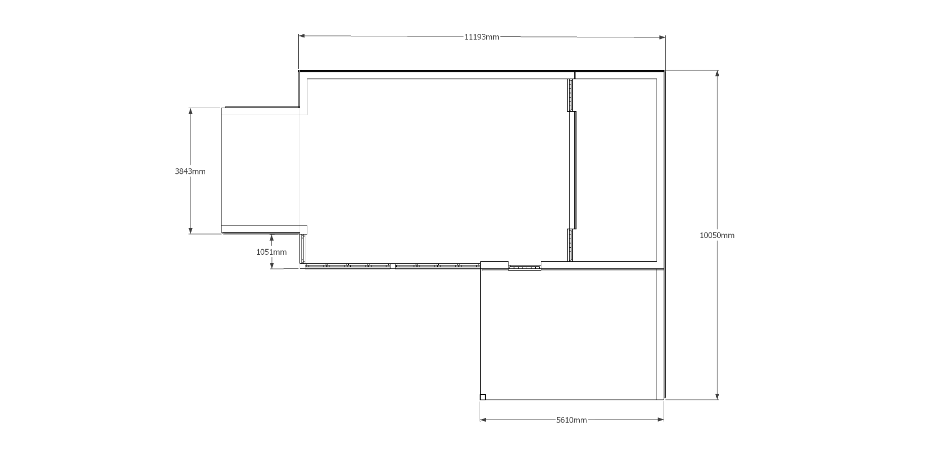
A 6 bay oak framed building made up of 3 frames. The first frame is a single bay in size and is a link building between an existing building and the other frames. It is open on the left and right with a 2 light window at the front. The second frame accounts for 4 bays with upper floor. On the ground floor there are 2 bays with the front wall made up entirely of full height glazing to allow plenty of natural light in and the other 2 bays boarded with softwood weatherboard and a solid single door, on the right side of the building is a 2 light window as well as one at the rear. The first floor has a single 2 light window on the right wall. The final frame is a single bay with the front and right side left open with a large window atthe rear.
Dimensions
| G/F Area (sq m) | 60.1 |
| F/F Area (sq m) | 18.2 |
| Total Area (sq m) | 78.3 |
| Length (m) | 11.1 |
| Depth (m) | 10 |
| Ridge Height (m) | 6.125 |
| Roof Pitch (deg) | 50 |
| Number of Bays | 6 |
| Location | Belgium |




