Oak Barns - WS01748
Also in: Oak Framed Complexes
Also in: Stables and Barns
This is a building we have previously constructed which you may want to use as a starting point for your design. All our buildings are designed and manufactured to your individual specifications.
Details
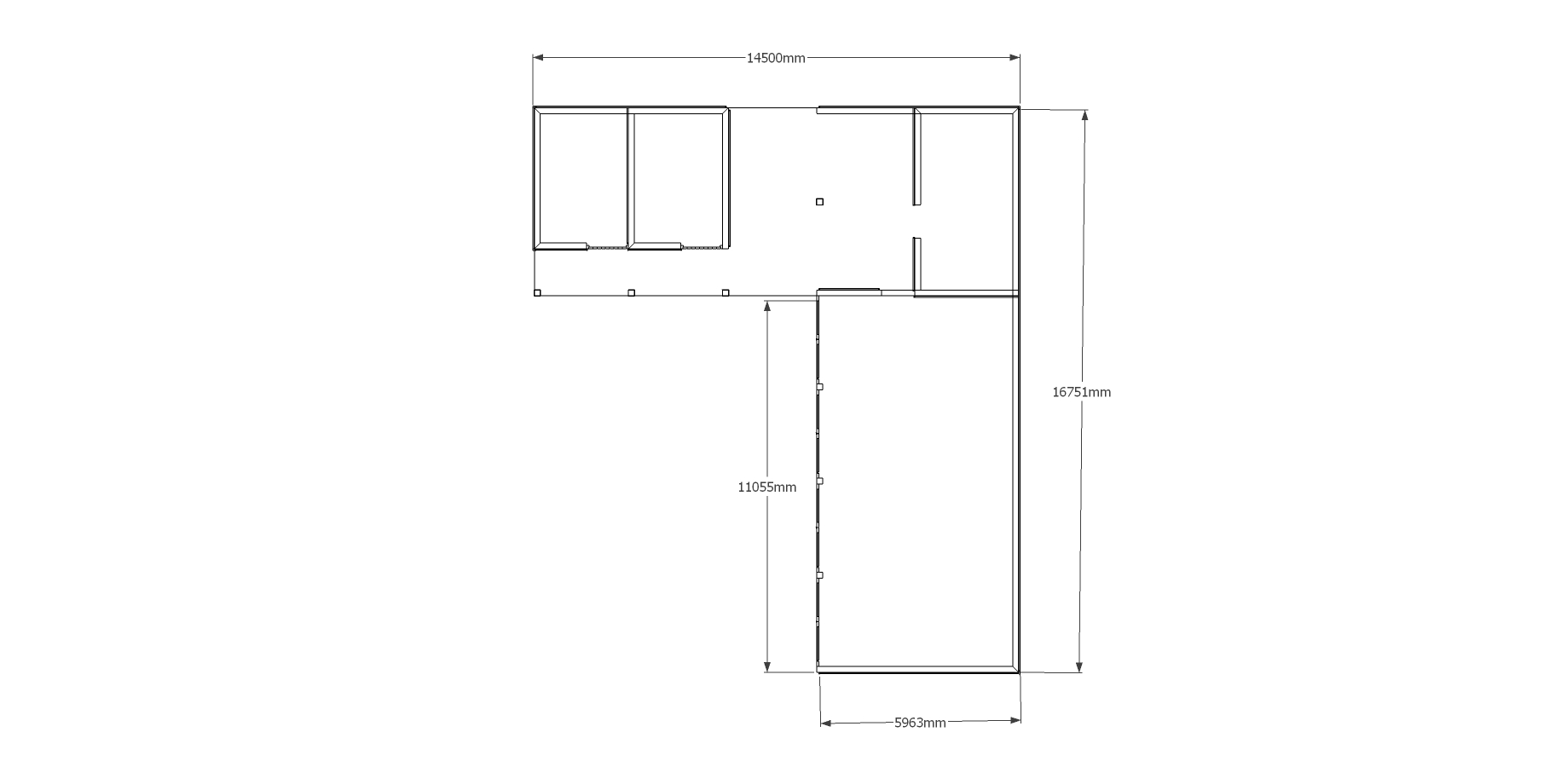
A 9 bay oak framed garage made up of 2 frames. The first frame is 3 bays in size with set back partitions along the front to create an aisle at the front. The front wall has 2 mullion windows and 2 decorative stable doors and the end bay is left open at the front and rear. The second frame is 6 bays with upper floor. On the ground floor there are 4 bays enclosed with iroko gargae doors at the front and above on the first floor there are 2 large dormers each containing a section of full height glazing allowing plenty of natural light into the frame.
Dimensions
| G/F Area (sq m) | 149 |
| Total Area (sq m) | 149 |
| Length (m) | 16.7 |
| Depth (m) | 14.5 |
| Ridge Height (m) | 5.83 |
| Roof Pitch (deg) | 45 |
| Number of Bays | 9 |
| Location | Belgium |




