Back to Home Leisure Buildings
Home Leisure Buildings - WS01745
This is a building we have previously constructed which you may want to use as a starting point for your design. All our buildings are designed and manufactured to your individual specifications.
Details
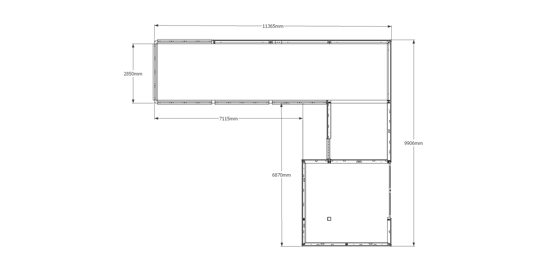
A 6 bay oak framed leisure building made up of 2 frames. The first frame is 4 bays in size and has full height glazing spanning three bays at the front as well and the lef wall fully glazed and part of the rear allowing plenty of natural light into the building. The second frame accounts for the other 2 bays and has an internal aisle on the right and also in the front with a pair of iroko garage doors at the rear, a mullion window and a 2 light window.
Dimensions
| G/F Area (sq m) | 59.8 |
| Total Area (sq m) | 59.8 |
| Length (m) | 11.3 |
| Depth (m) | 9.9 |
| Ridge Height (m) | 3.7 |
| Roof Pitch (deg) | 40 |
| Number of Bays | 6 |
| Location | Hampshire |




