Commercial Buildings - WS01740
This is a building we have previously constructed which you may want to use as a starting point for your design. All our buildings are designed and manufactured to your individual specifications.
Details
A 6 bay oak framed building made up of 2 frames with upper floors. The first frame has 2 open bays on the ground floor and the first floor bays has 2 dormer windows, on the left of the first floor is a half glazed door. The second frame makes up the other 4 bays. On the ground floor 2 of the bays are enclosed each with a pair of iroko garage doors at the front and on the right hand side is an external aisle. On the first floor there are another 2 dormers both containing 2 light windows and on the right of the building is another half glazed door.
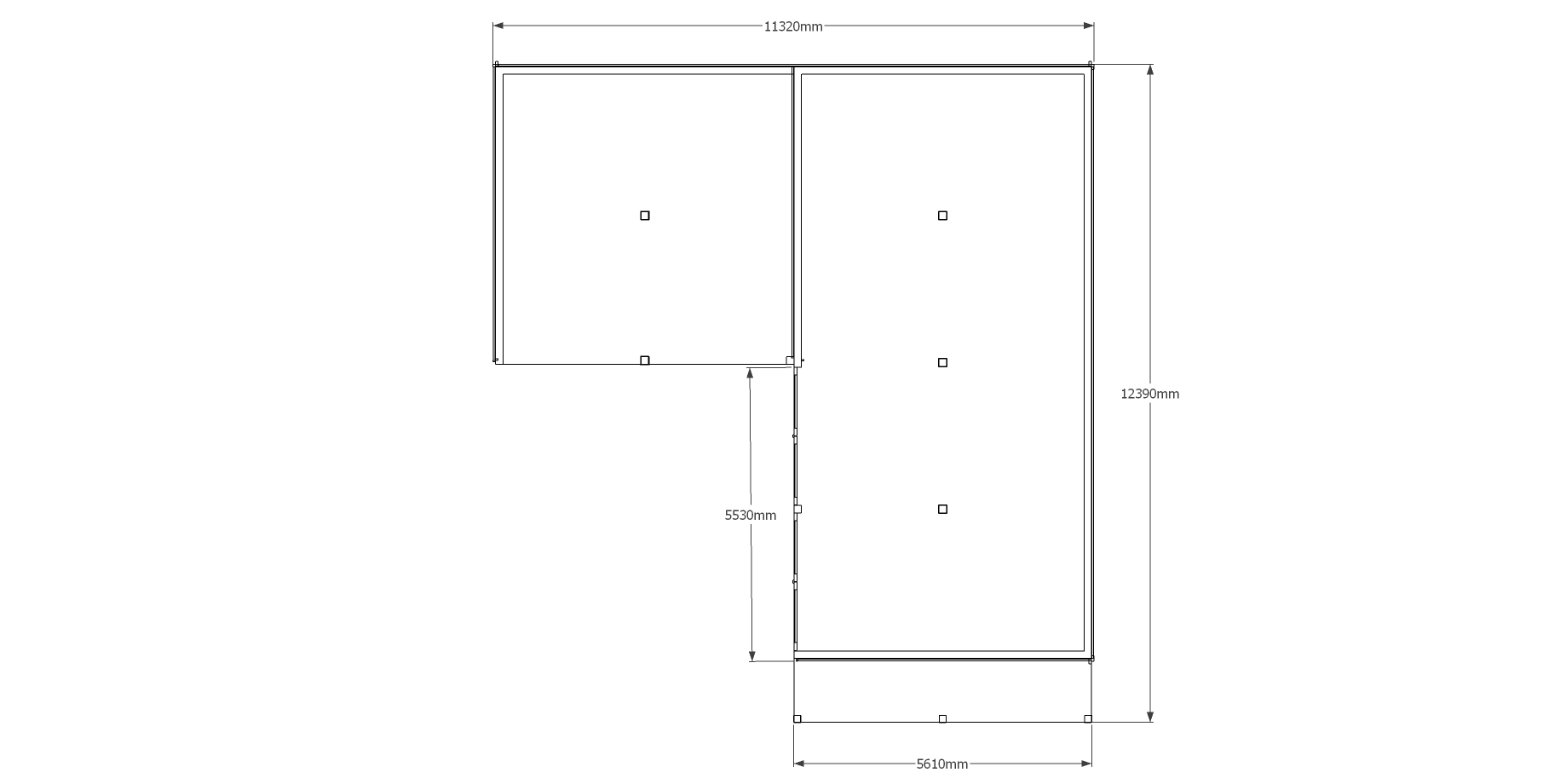
Dimensions
| G/F Area (sq m) | 101.58 |
| F/F Area (sq m) | 41.5 |
| Total Area (sq m) | 143.08 |
| Length (m) | 12.39 |
| Depth (m) | 11.32 |
| Ridge Height (m) | 5.25 |
| Roof Pitch (deg) | 45 |
| Number of Bays | 6 |
| Location | Surrey |




