Back to Home Leisure Buildings
Home Leisure Buildings - WS01739
This is a building we have previously constructed which you may want to use as a starting point for your design. All our buildings are designed and manufactured to your individual specifications.
Details
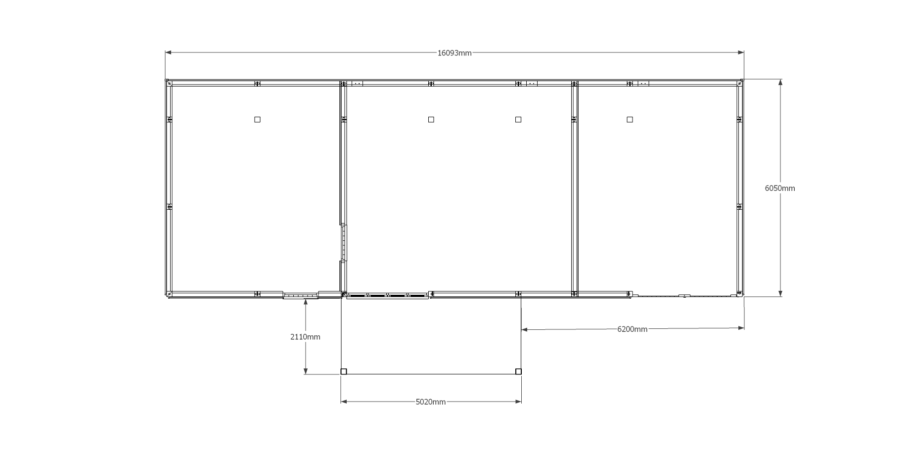
An 8 bay oak framed building made up of 2 frames, the first frame is a single bay in size and is open on all sides. The second frame accounts for the other 7 bays and at the front has a half glazed door as well as windows spanning all but 1 bay to allow plenty of natural light into the building and the final bay has a pair of iroko garage doors at the front. On the left of the building is 2 sections of glazing to allow even more light into the frame.
Dimensions
| G/F Area (sq m) | 106.5 |
| Total Area (sq m) | 106.5 |
| Length (m) | 16 |
| Depth (m) | 8.15 |
| Ridge Height (m) | 4 |
| Roof Pitch (deg) | 33 |
| Number of Bays | 8 |
| Location | Berkshire |




