Home Leisure Buildings - WS01736
This is a building we have previously constructed which you may want to use as a starting point for your design. All our buildings are designed and manufactured to your individual specifications.
Details
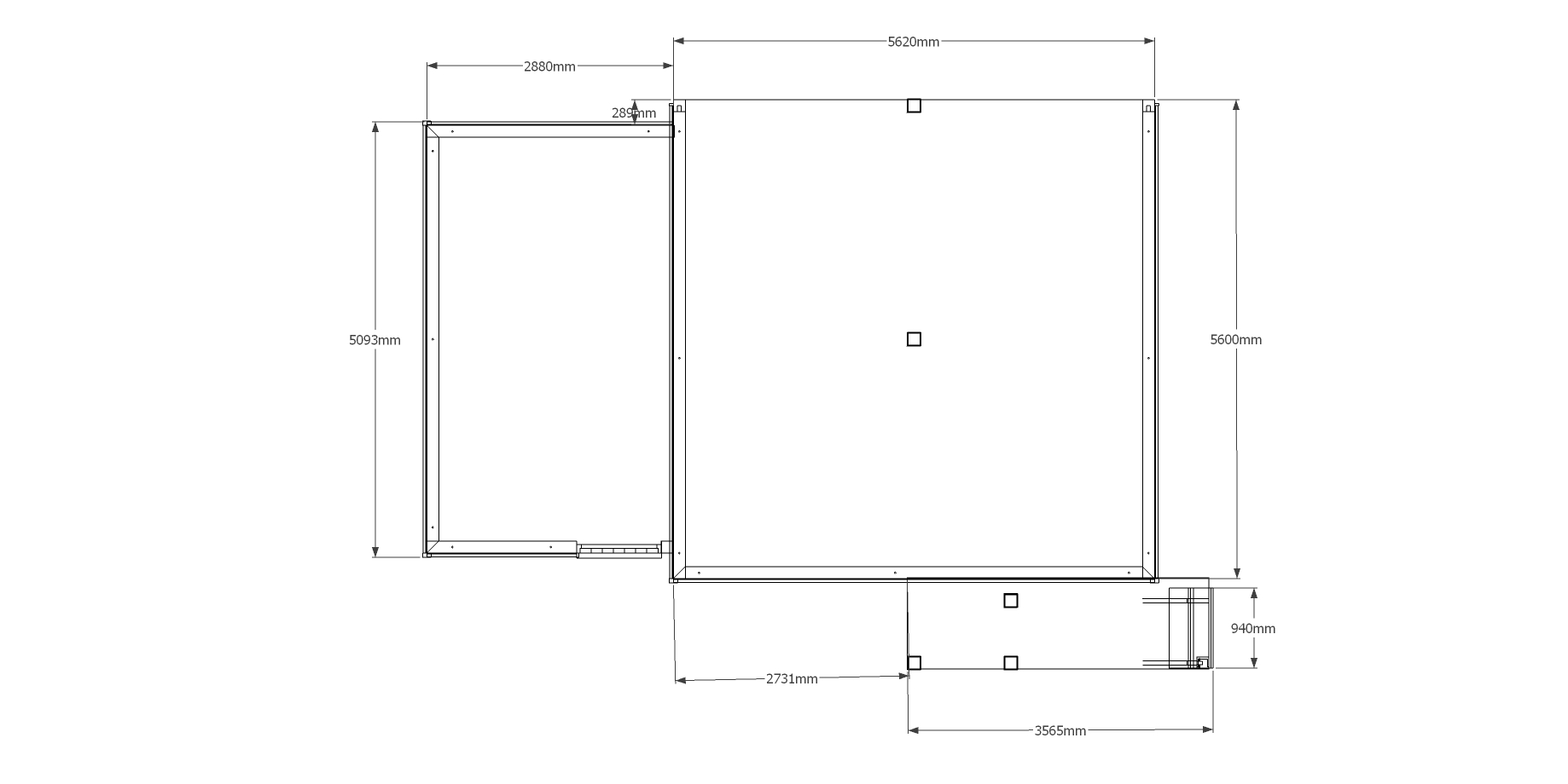
A 3 bay oak frame building made up of 2 frames, the first of which is a single bay with a solid single door and a mullion window at the front and on the left is another mullion window. The second frame is 2 bayswith upper floor,the rear of the building is left open and at the front of the building is an external oak staircase allowing access to the first floor at the top of which is a solid single door housed in a large dormer, also on the first floor is a rooflight on the front to allow some natural light into the upper floor of the building.
Dimensions
| G/F Area (sq m) | 50.6 |
| F/F Area (sq m) | 14.04 |
| Total Area (sq m) | 64.64 |
| Length (m) | 8.5 |
| Depth (m) | 5.6 |
| Ridge Height (m) | 5.2 |
| Roof Pitch (deg) | 45 |
| Number of Bays | 3 |
| Location | Kent |




