Oak Barns - WS01735
Also in: Oak Framed Complexes
Also in: Stables and Barns
This is a building we have previously constructed which you may want to use as a starting point for your design. All our buildings are designed and manufactured to your individual specifications.
Details
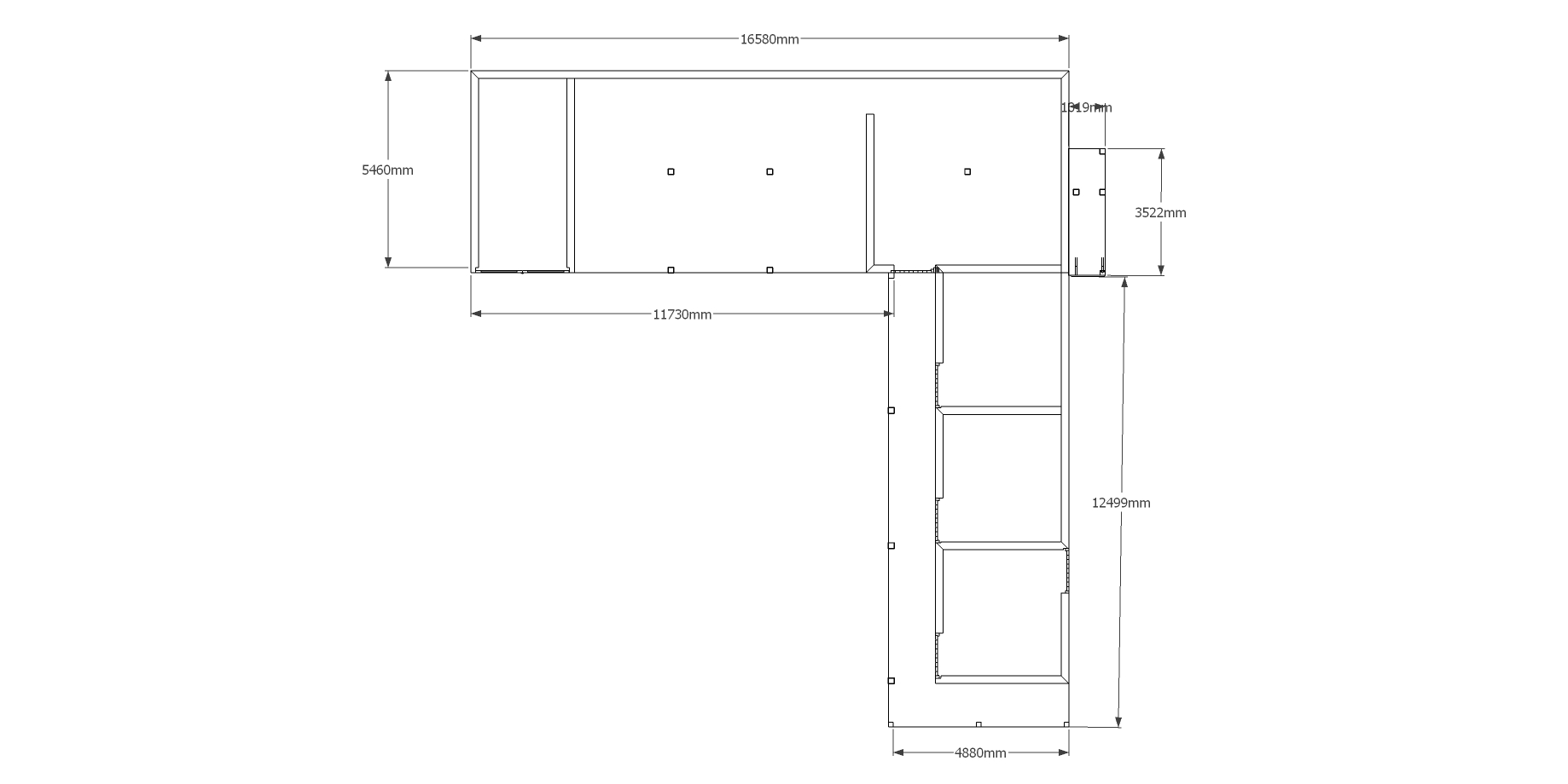
A 9 bay oak frame equestrian building made up of 2 frames. The first frame is 6 bays with an upper floor. On the ground floor one bay is enclosed with a pair of iroko garage doors and with 3 bays left open at the front and another bay enclosed with a solid single door while one of the open bays has a barn entrance, on the right of the building is an external oak staircase leading to the first floor with a solid single door . The second frame is 3 bays in size and has a mullion window and a functional stable door at the front of each bay with a covered walkway along the front and right hand sides.
Dimensions
| G/F Area (sq m) | 159.34 |
| F/F Area (sq m) | 41 |
| Total Area (sq m) | 200.34 |
| Length (m) | 17 |
| Depth (m) | 16.6 |
| Ridge Height (m) | 5.25 |
| Roof Pitch (deg) | 45 |
| Number of Bays | 9 |
| Location | Leicestershire |




