Back to Four Bays and Upwards
Four Bays and Upwards - WS01733
This is a building we have previously constructed which you may want to use as a starting point for your design. All our buildings are designed and manufactured to your individual specifications.
Details
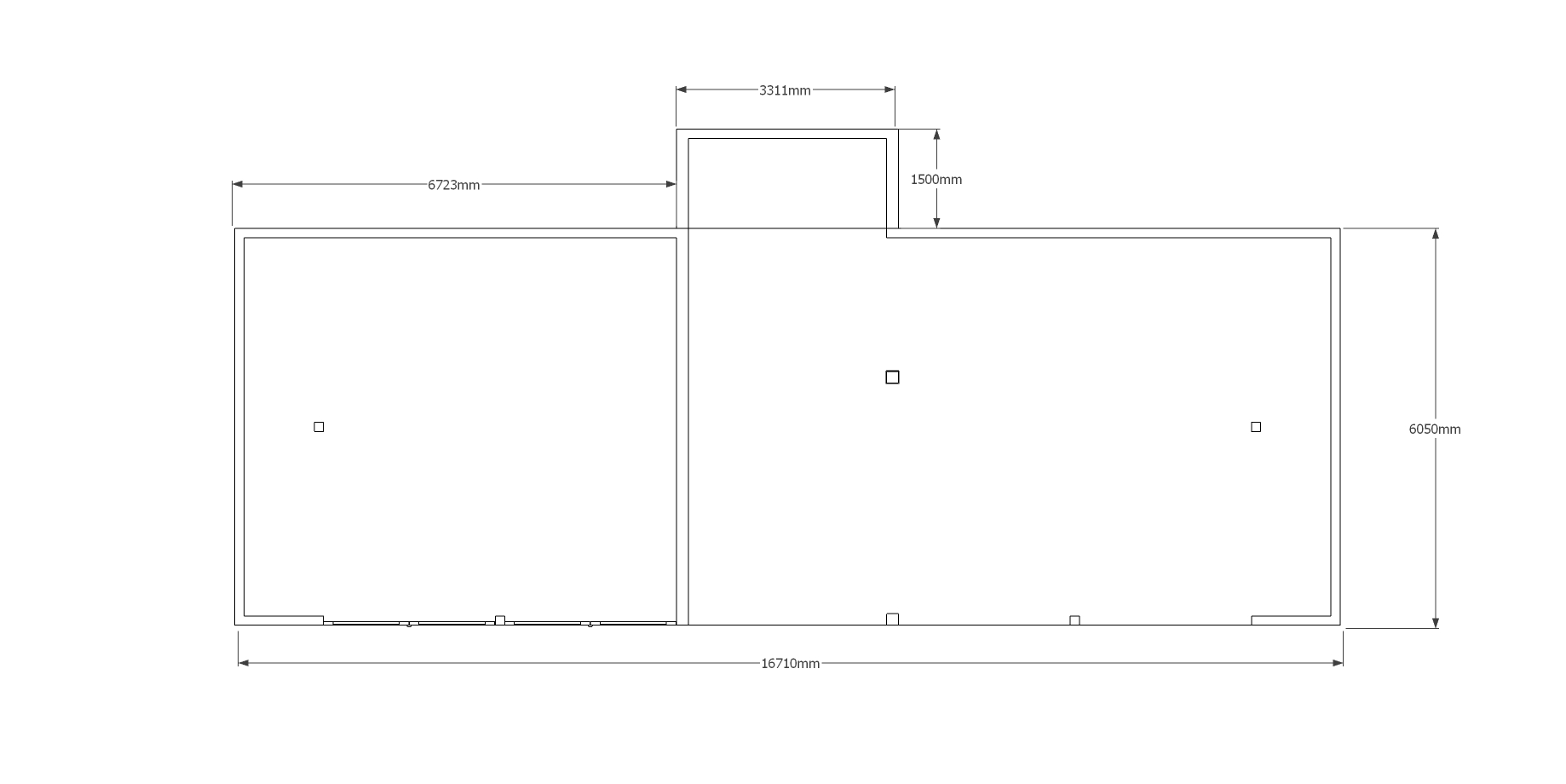
A 5 bay oak frame garage made up of 3 frames, the first of which is 2 bays in size and has an internal aisle on the left with a pair of iroko garage doors at the front of both bays. The second frame accounts for a 1bay which is open at the left hand side with a rear wall and a right wall. The final frame makes up the last 2 bays and is open at the front with an internal aisle on the right.
Dimensions
| G/F Area (sq m) | 105.2 |
| Total Area (sq m) | 105.2 |
| Length (m) | 16.7 |
| Depth (m) | 6 |
| Ridge Height (m) | 4.9 |
| Roof Pitch (deg) | 35 |
| Number of Bays | 5 |
| Location | Leicestershire |




