Back to Three Bay Oak Garages with Upper Floors
Three Bay Oak Garages with Upper Floors - WS01732
This is a building we have previously constructed which you may want to use as a starting point for your design. All our buildings are designed and manufactured to your individual specifications.
Details
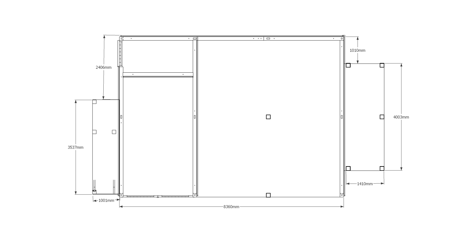
A 3 bay oak frame garage with upper floor. One bay has a pair of iroko garage doors while the other 2 bays are left open, on the left of the building is a staircase leading to the first floor, on the first floor is a solid single door on the left while at the front there is a dormer in each bay containing a 2 light window and at the right is a balcony area.
Dimensions
| G/F Area (sq m) | 59.42 |
| F/F Area (sq m) | 23.2 |
| Total Area (sq m) | 82.62 |
| Length (m) | 10.86 |
| Depth (m) | 6 |
| Ridge Height (m) | 6 |
| Roof Pitch (deg) | 50 |
| Number of Bays | 3 |
| Location | Essex |




