Oak Framed Complexes - WS01731
This is a building we have previously constructed which you may want to use as a starting point for your design. All our buildings are designed and manufactured to your individual specifications.
Details
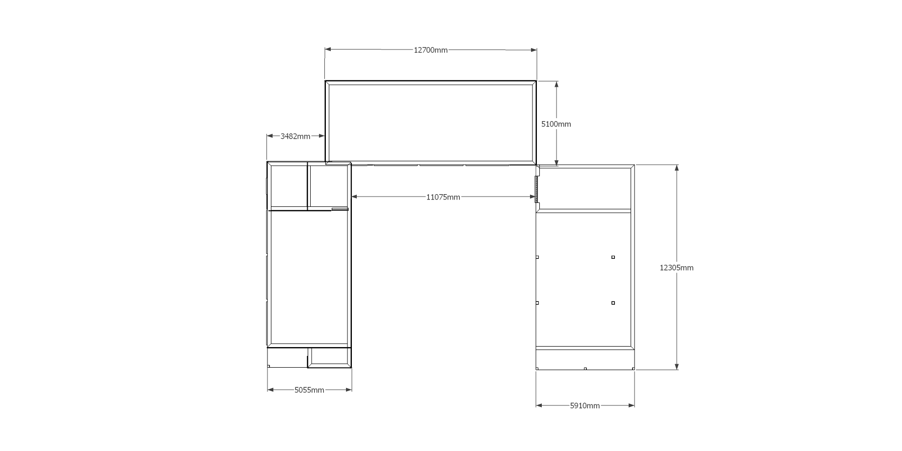
A 13 bay oak frame complex made up of 3 frames. The first frame is 4 bays in size with an aisle on the left with half internal and half external and at the front are two 2 light windows, at the rear is a solid single door and a section of full height glazing spanning 3 bays to allow plenty of natural light into the building. The second frame is 5 bays in size with a solid sinlge door at the front as well as another large section of full height glazing again spanning 3 bays. The final frame is 4 bays in size and has an external aisle on the right with 3 of the bays left open at the front and the 4th bay enclosed with a pair of iroko doors at the front.
Dimensions
| G/F Area (sq m) | 197 |
| Total Area (sq m) | 197 |
| Length (m) | 21.975 |
| Depth (m) | 17.3 |
| Ridge Height (m) | 4.5 |
| Roof Pitch (deg) | 40 |
| Number of Bays | 13 |
| Location | Kent |




