Back to Two Bay Oak Garages
Two Bay Oak Garages - WS01720
This is a building we have previously constructed which you may want to use as a starting point for your design. All our buildings are designed and manufactured to your individual specifications.
Details
A 2 bay oak framed garage open at the front with an internal aisle at the rear and pantile roofing.
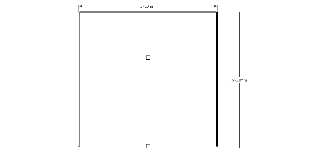
Dimensions
| G/F Area (sq m) | 32.09 |
| Total Area (sq m) | 32.09 |
| Length (m) | 5.72 |
| Depth (m) | 5.611 |
| Ridge Height (m) | 3.98 |
| Roof Pitch (deg) | 40 |
| Number of Bays | 2 |
| Location | Norfolk |



