Back to Two Bay Oak Garages
Two Bay Oak Garages - WS01703
This is a building we have previously constructed which you may want to use as a starting point for your design. All our buildings are designed and manufactured to your individual specifications.
Details
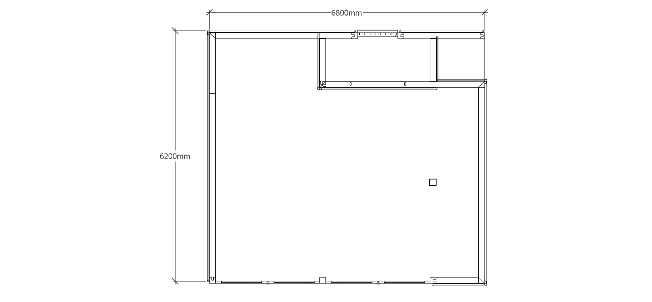
A 2 bay oak framed garage with 2 pairs of iroko garage doors at the front with an internal aisle on the right and on the left is a mullion window. At the rear is an internal aisle and a dormer housing a half glazed single door.
Dimensions
| G/F Area (sq m) | 42.16 |
| Total Area (sq m) | 42.16 |
| Length (m) | 6.8 |
| Depth (m) | 6.2 |
| Ridge Height (m) | 3.9 |
| Roof Pitch (deg) | 30 |
| Number of Bays | 2 |
| Location | Belgium |



